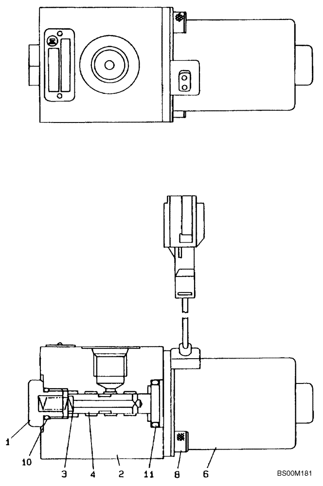
Запчасти Case CX290 (08-77) - VALVE, SOLENOID - FREE SWING (08) - HYDRAULICS

Схема запчастей Case CX290 - (08-77) - VALVE, SOLENOID - FREE SWING (08) - HYDRAULICS
4
2
11
6
3
8
10
1
FIT
1:1
100%

Артикул

Название

Примечание

Количество

159205A1

VALVE

Incl. 1 - 11

1шт.

1

155456A1

PLUG

1шт.

2

NSS

NOT SOLD SEPARAT

Body

1шт.

3

LSC0278

COMPRESSION SPRING

1шт.

4

NSS

NOT SOLD SEPARAT

Spool

1шт.

6

CDP0873

SOLENOID VALVE

Replaces 160319A1

1шт.

8

160298A1

BOLT,Hex Skt

Replaces 862-5010

2шт.

10

154462A1

O-RING

1шт.

11

154482A1

O-RING

1шт.

Выбрано товаров: 9