Запчасти Case CX290 (08-25) - HYDRAULICS - PILOT CONTROL LINES (08) - HYDRAULICS

Схема запчастей Case CX290 - (08-25) - HYDRAULICS - PILOT CONTROL LINES (08) - HYDRAULICS
92
104
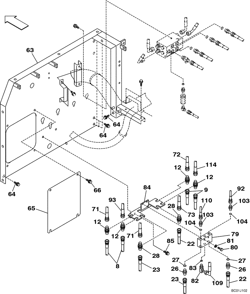
63
64
84
28
80
8
12
109
85
23
79
22
93
64
27
12
81
71
99
23
114
12
83
65
72
28
22
12
26
110
26
73
103
64
71
27
82
103
66
104
FIT
1:1
100%

Артикул

Название

Примечание

Количество

Partition

1шт.

Standard Machines

1шт.

8

KRJ4336

HYDRAULIC HOSE,9.50 mm ID x 2200.00 mm

See Figure 08-24

2шт.

9

168025A1

HYDRAULIC HOSE,9.50 mm ID x 1950.00 mm

See Figure 08-24

2шт.

12

162826A1

ADAPTER

4шт.

22

KHJ1345

HYDRAULIC HOSE,9.52 mm ID x 2150.00 mm

See Figure 08-24

2шт.

23

168025A1

HYDRAULIC HOSE,9.50 mm ID x 1950.00 mm

See Figure 08-24

2шт.

26

152747A1

ADAPTER

Incl. 27

2шт.

27

154467A1

O-RING,10.8mm ID x 2.4mm Width

1шт.

28

162826A1

ADAPTER

2шт.

63

KRJ6275

SIDE PANEL

1шт.

64

152718A1

BOLT,Spcl, Hex Wshr, M12 x 25mm, Cl 10.9

4шт.

65

KRJ6094

COVER

1шт.

66

166052A1

BOLT

With Attached Washer

4шт.

71

162835A1

HOSE ASSY.

See Figure 08-26

2шт.

72

KRJ3932

HOSE

See Figure 08-26

1шт.

73

KRJ3569

HOSE

See Figure 08-26

1шт.

79

KHJ17120

VALVE SECTION

; Replaces KHJ1973

1шт.

80

827-8045

BOLT,Hex, M8 x 1.25 x 45mm, Cl 10.9

2шт.

81

153081A1

WASHER

2шт.

82

KHJ1974

TEE

Incl. 83

1шт.

83

154467A1

O-RING,10.8mm ID x 2.4mm Width

1шт.

84

KHJ1576

BRACKET

1шт.

85

166052A1

BOLT

With Attached Washer

2шт.

92

KHJ1608

HOSE

See Figure 08-33

1шт.

93

159071A1

HOSE

See Figure 08-33

1шт.

103

152127A1

HYD CONNECTOR,1/4" NPT O-Ring x 1/4" NPT

Incl. 104

2шт.

104

154467A1

O-RING,10.8mm ID x 2.4mm Width

1шт.

109

162555A1

HOSE

See Figure 08-34

1шт.

110

161657A1

HOSE ASSY.

1600 mm (63 in), See Figure 08-33

1шт.

114

157963A1

HOSE

See Figure 08-33

1шт.

Выбрано товаров: 31