Запчасти Case CX290 (08-27) - HYDRAULICS - PILOT CONTROL LINES (08) - HYDRAULICS

Схема запчастей Case CX290 - (08-27) - HYDRAULICS - PILOT CONTROL LINES (08) - HYDRAULICS
121
28
80
80
131
78
74
71
12
68
126
80
27
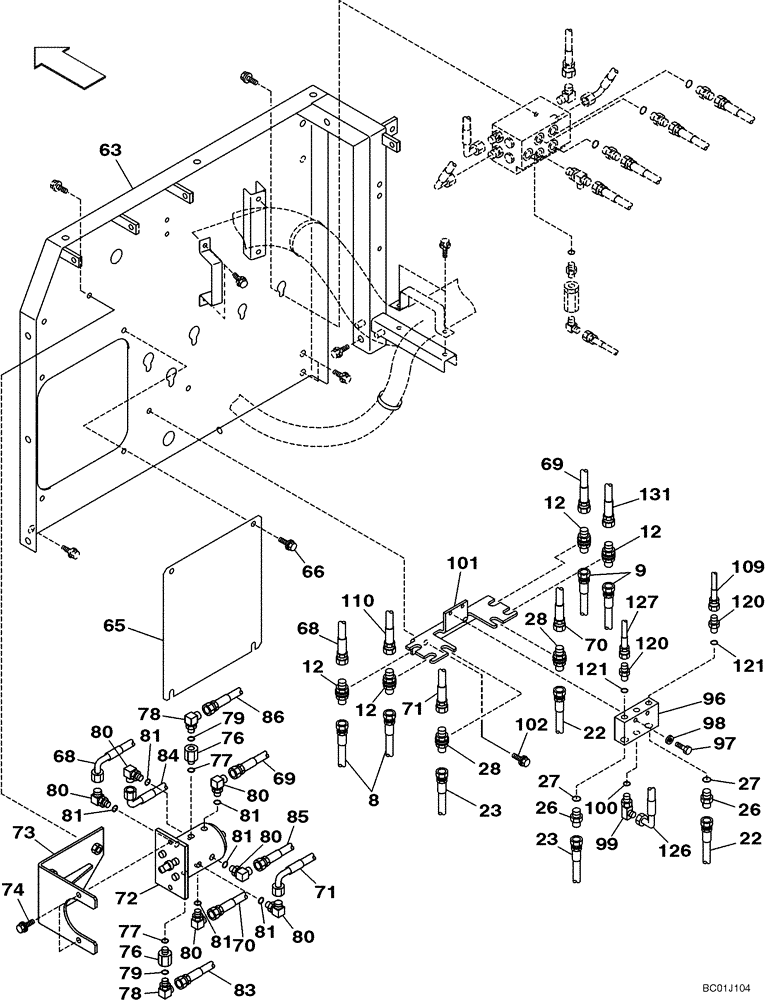
66
81
97
73
28
63
12
96
83
101
81
100
65
99
79
84
76
81
121
78
77
70
26
77
70
79
72
81
69
127
98
12
71
81
109
80
120
110
80
68
8
86
22
102
85
23
26
22
81
69
80
23
9
12
76
27
120
FIT
1:1
100%

Артикул

Название

Примечание

Количество

Partition

1шт.

Models With Alternate Joystick Control Pattern

1шт.

8

KRJ4336

HYDRAULIC HOSE,9.50 mm ID x 2200.00 mm

See Figure 08-24

2шт.

9

168025A1

HYDRAULIC HOSE,9.50 mm ID x 1950.00 mm

See Figure 08-24

2шт.

12

162826A1

ADAPTER

4шт.

22

KHJ1345

HYDRAULIC HOSE,9.52 mm ID x 2150.00 mm

See Figure 08-24

2шт.

23

168025A1

HYDRAULIC HOSE,9.50 mm ID x 1950.00 mm

See Figure 08-24

2шт.

26

152747A1

ADAPTER

Incl. 27

2шт.

27

154467A1

O-RING,10.8mm ID x 2.4mm Width

1шт.

28

162826A1

ADAPTER

2шт.

63

KRJ6275

SIDE PANEL

1шт.

65

KRJ6094

COVER

1шт.

66

627-10025

BOLT,Hex, M10 x 1.5 x 25mm, Cl 10.9, Full Thd

4шт.

896-11010

WASHER,11mm ID x 21mm OD x 2.5mm Thk

4шт.

68

159012A1

HOSE ASSY.

1шт.

69

162015A1

HOSE ASSY.

1шт.

70

152612A1

HOSE,95.00 mm ID x 600.00 mm

1шт.

71

168411A1

HOSE,650.00 mm

1шт.

72

KHJ2184

VALVE

See Figure 08-82

1шт.

73

KRJ6550

BRACKET

1шт.

74

627-10025

BOLT,Hex, M10 x 1.5 x 25mm, Cl 10.9, Full Thd

2шт.

896-11010

WASHER,11mm ID x 21mm OD x 2.5mm Thk

2шт.

76

KHJ1584

UNION

Incl. 77

2шт.

77

154467A1

O-RING,10.8mm ID x 2.4mm Width

1шт.

78

150916A1

ELBOW,90 Degree, 3/8" O-Ring x 3/8"

Incl. 79

2шт.

79

154475A1

O-RING

1шт.

80

153559A1

ELBOW

Incl. 81

6шт.

81

154467A1

O-RING,10.8mm ID x 2.4mm Width

1шт.

83

KBJ2349

HOSE

See Figure 08-28

1шт.

83

KBJ2349

HOSE

See Figure 08-28

1шт.

84

159224A1

HOSE ASSY.

900 mm (35-1/2 in), See Figure 08-28

1шт.

85

162565A1

HOSE ASSY.

1000 mm (39-3/8 in), See Figure 08-28

1шт.

86

KRJ3893

HOSE

See Figure 08-28

1шт.

96

KHJ17120

VALVE SECTION

; Replaces KHJ1973

1шт.

97

827-8045

BOLT,Hex, M8 x 1.25 x 45mm, Cl 10.9

2шт.

98

153081A1

WASHER

2шт.

99

KHJ1974

TEE

Incl. 100

1шт.

100

154467A1

O-RING,10.8mm ID x 2.4mm Width

1шт.

101

KHJ1576

BRACKET

1шт.

102

627-10025

BOLT,Hex, M10 x 1.5 x 25mm, Cl 10.9, Full Thd

2шт.

896-11010

WASHER,11mm ID x 21mm OD x 2.5mm Thk

2шт.

109

KHJ1608

HOSE

See Figure 08-35

1шт.

110

159071A1

HOSE

See Figure 08-35

1шт.

120

152127A1

HYD CONNECTOR,1/4" NPT O-Ring x 1/4" NPT

Incl. 121

2шт.

121

154467A1

O-RING,10.8mm ID x 2.4mm Width

1шт.

126

162555A1

HOSE

See Figure 08-36

1шт.

127

161657A1

HOSE ASSY.

1600 mm (63 in), See Figure 08-35

1шт.

131

157963A1

HOSE

See Figure 08-35

1шт.

Выбрано товаров: 48