Запчасти Case CX350 (06-003-05[01]) - TRAVEL REDUCTION GEAR (06) - POWER TRAIN

Схема запчастей Case CX350 - (06-003-05[01]) - TRAVEL REDUCTION GEAR (06) - POWER TRAIN
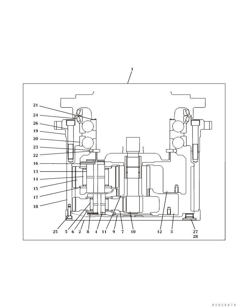
15
6
22
1
2
7
23
12
13
17
3
18
9
20
10
27
11
28
16
14
bs02k076
5
19
24
25
21
26
4
8
FIT
1:1
100%

Артикул

Название

Примечание

Количество

1

NSS

NOT SOLD SEPARAT

1шт.

Reducer

1шт.

Consists Of Ref. Numbers 2 To 28

1шт.

2

LW00385

COVER

1шт.

3

LN00096

REDUCER

1шт.

4

LA00836

PIN

3шт.

5

LB00789

NEEDLE BEARING

3шт.

6

LA00837

THRUST WASHER

6шт.

7

LA00205

WASHER

3шт.

8

338W050Z036B

KEY

3шт.

9

LR00857

PLATE

1шт.

10

LC00204

SUN GEAR

1шт.

11

LC00206

SUN GEAR

1шт.

12

LN00097

HOUSING

1шт.

13

LA00838

PIN

3шт.

14

LB00790

NEEDLE BEARING

3шт.

15

LC00207

PLANETARY GEAR

3шт.

16

338W100Z050B

KEY

3шт.

17

LA00839

THRUST WASHER

6шт.

18

LC00208

HOUSING

1шт.

19

LT00127

HOUSING

1шт.

20

LB00791

BEARING, BALL

2шт.

21

LH00319

SHIM

1шт.

22

LA00832

LOCK WASHER

2шт.

23

LE00992

RING

1шт.

24

LE00993

SEAL

1шт.

25

862-10030

HEX SOC SCREW,M10 x 30mm, Cl 12.9

18шт.

26

108R018Y110R

BOLT

M18 x 110

25шт.

27

LK00383

PLUG

2шт.

28

154503A1

O-RING

2шт.

LZ00628

SEAL KIT

1шт.

Consists Of Ref. Numbers 28, 44, 45, 64 To 68, 79 To 82, 91, 92, 99, 100, 105, 107, 110, 111, 112, 114

1шт.

Выбрано товаров: 32