Запчасти Case CX460 (09-02) - TURNTABLE (09) - CHASSIS/ATTACHMENTS

Схема запчастей Case CX460 - (09-02) - TURNTABLE (09) - CHASSIS/ATTACHMENTS
1
FIT
1:1
100%

Артикул

Название

Примечание

Количество

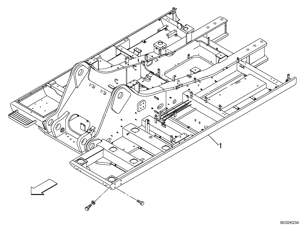
1

KTB0933

FRAME ASSY

Turntable

1шт.

2

KSP0943

ANGLE BAR

Used To Repair Damaged Sections in the Formed Plates Around Edge of Revolving Frame; Not Illustrated

1шт.

Выбрано товаров: 2