Запчасти Case CX80 (08-43) - PILOT CONTROL LINES - MODELS WITH LOAD HOLD (08) - HYDRAULICS

Схема запчастей Case CX80 - (08-43) - PILOT CONTROL LINES - MODELS WITH LOAD HOLD (08) - HYDRAULICS
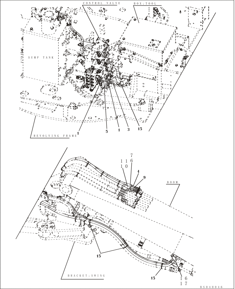
sump tank
revolving frame
17
15
5
boom
15
3
16
6
1
1
4
9
10
control valve
bs04h046
15
7
11
FIT
1:1
100%

Артикул

Название

Примечание

Количество

1

KHJ2130

TEE

2шт.

3

KHJ2837

HYDRAULIC HOSE,6.30 mm ID x 3500.00 mm

See Figure 08-44

1шт.

4

KHJ2837

HYDRAULIC HOSE,6.30 mm ID x 3500.00 mm

See Figure 08-44

1шт.

5

KAJ5146

HYDRAULIC HOSE,6.35 mm ID x 3200.00 mm

See Figure 08-44

1шт.

6

150408A1

PLASTIC-RUBBER TUBE,13 mm ID, 17.5 mm OD, 2000 mm Length

1шт.

7

KAP0883

BAND

2шт.

9

KHJ1321

HYDRAULIC HOSE,6.35 mm ID x 3900.00 mm

See Figure 08-44

1шт.

10

150408A1

PLASTIC-RUBBER TUBE,13 mm ID, 17.5 mm OD, 2000 mm Length

1шт.

11

KAP0883

BAND

2шт.

15

150496A1

MOUNTING CLIP

1шт.

16

KMJ1851

HOSE CLAMP

1шт.

17

166345A1

BOLT

1шт.

Выбрано товаров: 12