Запчасти Case CX80 (08-45) - HYDRAULICS - PILOT PRESSURE, RETURN LINES (08) - HYDRAULICS

Схема запчастей Case CX80 - (08-45) - HYDRAULICS - PILOT PRESSURE, RETURN LINES (08) - HYDRAULICS
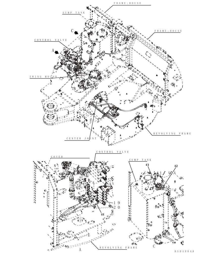
swing motor
a
bs04h048
control valve
sump tank
19
revolving frame
c
center joint
revolving frame
sump tank
20
a
cover
43
c
control valve
42
18
FIT
1:1
100%

Артикул

Название

Примечание

Количество

18

KHJ2094

HOSE

See Figure 08-46

1шт.

19

152127A1

HYD CONNECTOR,1/4" NPT O-Ring x 1/4" NPT

Incl. 20

1шт.

20

154467A1

O-RING,10.8mm ID x 2.4mm Width

1шт.

42

KHJ2417

HOSE

See Figure 08-47

1шт.

43

153526A1

ELBOW

1шт.

Выбрано товаров: 0