Запчасти Case CX80 (08-51) - HYDRAULICS, AUXILIARY - MULTI-PURPOSE + 3 WAY VALVE (08) - HYDRAULICS

Схема запчастей Case CX80 - (08-51) - HYDRAULICS, AUXILIARY - MULTI-PURPOSE + 3 WAY VALVE (08) - HYDRAULICS
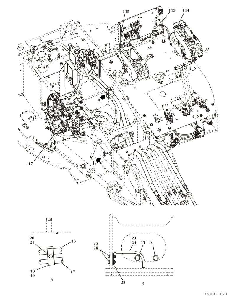
117
17
18
b
a
17
26
20
24
bs04h054
115
23
19
113
a
22
16
114
16
25
b
21
FIT
1:1
100%

Артикул

Название

Примечание

Количество

16

KAJ5138

HYDRAULIC HOSE,15.88 mm ID x 3300.00 mm

See Figure 08-53

1шт.

17

KAJ5139

HYDRAULIC HOSE,15.9mm ID x 3400mm L

See Figure 08-53

1шт.

18

KAJ5183

HOSE CLAMP

2шт.

19

KAJ5156

PLATE

1шт.

20

827-12065

BOLT,Hex, M12 x 1.75 x 65mm, Cl 10.9

1шт.

21

150811A1

WASHER

1шт.

22

KAJ5199

HOLDER

1шт.

23

162189A1

GROMMET

1шт.

24

162190A1

GROMMET

1шт.

25

827-10040

BOLT,Hex, M10 x 1.5 x 40mm, Cl 10.9, Full Thd

2шт.

26

150409A1

WASHER

2шт.

113

KAR1434

WIRE HARNESS

See Figure 08-53

1шт.

114

KHR3121

SWITCH

1шт.

115

KHR3803

RELAY

1шт.

117

150498A1

MOUNTING CLIP

1шт.

Выбрано товаров: 15