Качественные детали и логистика
Оригинальные и аналоговые запчасти с доставкой по России, Казахстану и Беларуси
©2022 PartSell ООО "Система" ИНН 2463123282 ОГРН 1212400004838
Центральный офис: г. Красноярск, Академика Киренского, д.87, пом.4
Телефон: 8 (800) 777-65-74 Email: zakaz@partsell.ru
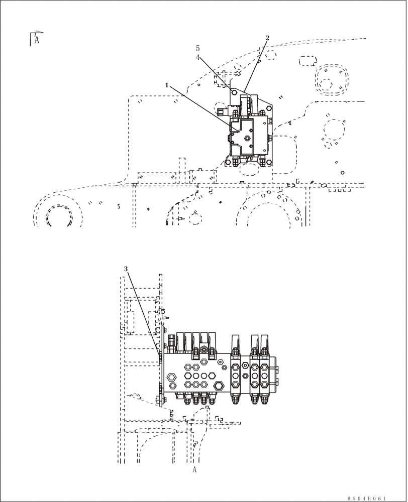
(08-68) - CONTROL VALVE - SUPPORT
№
Артикул
Название
Примечание
Количество
1
KAJ5076
CONTROL VALVE
See Figure 08-69 - 08-77
1шт.
2
KAJ5078
PLATE
3
166352A1
BOLT
4шт.
4
627-12040
BOLT,Hex, M12 x 1.75 x 40mm, Cl 10.9, Full Thd
5
150811A1
WASHER
Выбрано товаров: 0