Качественные детали и логистика
Оригинальные и аналоговые запчасти с доставкой по России, Казахстану и Беларуси
©2022 PartSell ООО "Система" ИНН 2463123282 ОГРН 1212400004838
Центральный офис: г. Красноярск, Академика Киренского, д.87, пом.4
Телефон: 8 (800) 777-65-74 Email: zakaz@partsell.ru
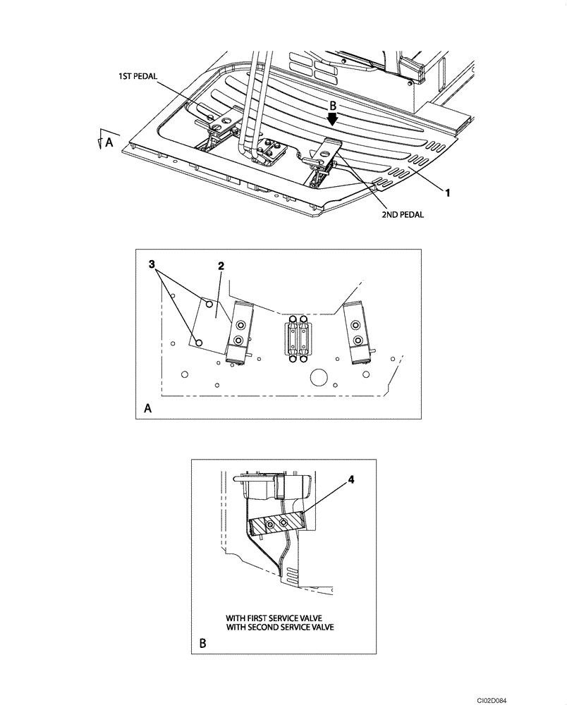
(09-24) - MAT, FLOOR - OPERATORS COMPARTMENT, MODELS WITH SECOND OPTION LINE
№
Артикул
Название
Примечание
Количество
1
KHJ2120
FLOOR MAT
1шт.
2
KHJ2571
COVER
3
166346A1
BOLT,Sems, M10
2шт.
4
163782A1
SKIRT COVER
Выбрано товаров: 0