Запчасти Case CX800 (08-50) - COUNTERWEIGHT REMOVAL SYSTEM (08) - HYDRAULICS

Схема запчастей Case CX800 - (08-50) - COUNTERWEIGHT REMOVAL SYSTEM (08) - HYDRAULICS
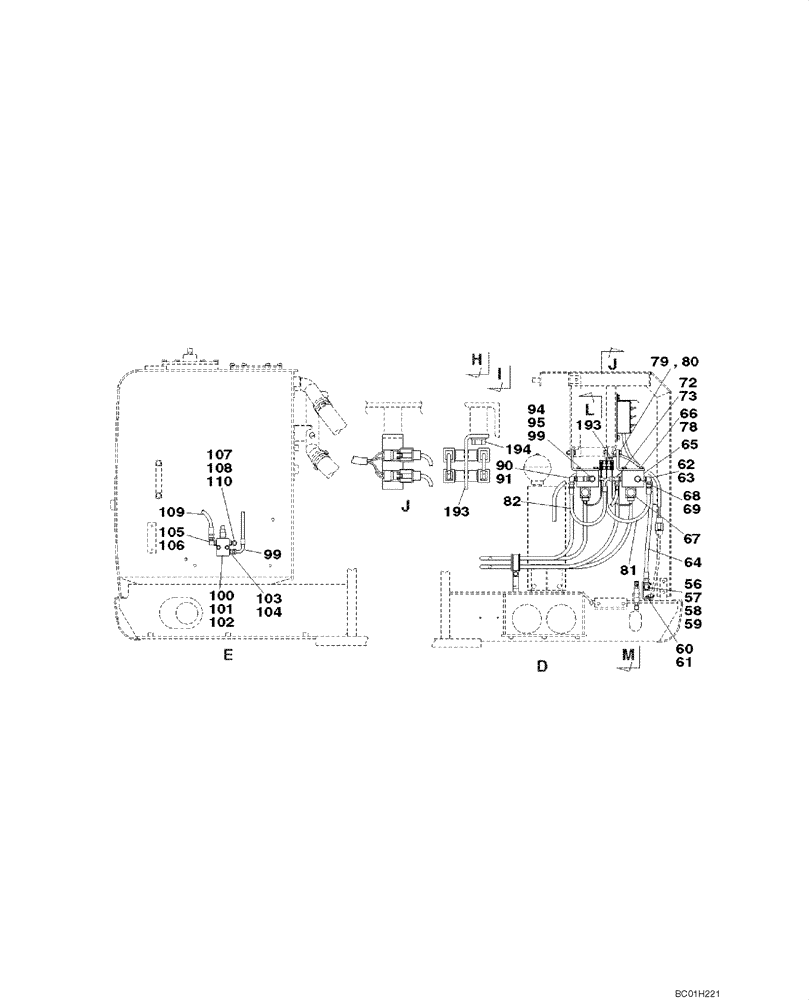
99
91
108
56
68
66
73
79
65
72
101
81
67
60
63
64
194
99
106
62
109
90
61
95
104
107
100
110
78
193
69
103
94
193
59
105
58
80
82
57
102
FIT
1:1
100%

Артикул

Название

Примечание

Количество

56

KHJ17390

MANIFOLD VALVE

Replaces KHJ1810

1шт.

57

102R005Y045R

BOLT

2шт.

58

892-11005

LOCK WASHER,M5

2шт.

59

895-11005

WASHER,5.5mm ID x 10mm OD x 1mm Thk

2шт.

60

KUJ0300

BRACKET

1шт.

61

167182A1

BOLT,Sems, M8 x 25mm

With Attached Washer

2шт.

62

150916A1

ELBOW,90 Degree, 3/8" O-Ring x 3/8"

Incl. 63

1шт.

63

154475A1

O-RING

1шт.

64

KHJ2284

HYDRAULIC HOSE,9.50 mm ID x 500.00 mm

1шт.

65

KUJ0298

MANIFOLD VALVE

1шт.

66

166052A1

BOLT

With Attached Washer

4шт.

67

KUJ0288

SOLENOID VALVE

1шт.

68

153105A1

PLUG

Incl. 69

1шт.

69

154475A1

O-RING

1шт.

72

164107A1

TEE,3/8" ORB x 3/8" - 19 NPT x 3/8" - 19 NPT

Incl. 73

1шт.

73

154475A1

O-RING

1шт.

78

KUB0181

BRACKET

1шт.

79

627-12035

BOLT,Hex, M12 x 1.75 x 35mm, Cl 10.9, Full Thd

2шт.

80

150811A1

WASHER

M12

2шт.

81

KHJ2284

HYDRAULIC HOSE,9.50 mm ID x 500.00 mm

1шт.

82

KHJ1539

HYDRAULIC HOSE,9.52 mm ID x 500.00 mm

1шт.

90

150916A1

ELBOW,90 Degree, 3/8" O-Ring x 3/8"

Incl. 91

1шт.

91

154475A1

O-RING

1шт.

94

150916A1

ELBOW,90 Degree, 3/8" O-Ring x 3/8"

Incl. 95

1шт.

95

154475A1

O-RING

1шт.

99

KHJ2284

HYDRAULIC HOSE,9.50 mm ID x 500.00 mm

1шт.

100

KUJ0289

VALVE PRESSURE RELIE

1шт.

101

827-8060

BOLT,Hex, M8 x 1.25 x 60mm, Cl 10.9

2шт.

102

895-11008

WASHER,9mm ID x 16mm OD x 1.6mm Thk

2шт.

103

152128A1

HYD CONNECTOR,3/8" NPT O-Ring x 3/8" NPT

Incl. 104

1шт.

104

154475A1

O-RING

1шт.

105

150916A1

ELBOW,90 Degree, 3/8" O-Ring x 3/8"

Incl. 106

1шт.

106

154475A1

O-RING

1шт.

107

150916A1

ELBOW,90 Degree, 3/8" O-Ring x 3/8"

Incl. 108

1шт.

108

154475A1

O-RING

1шт.

109

KHJ1539

HYDRAULIC HOSE,9.52 mm ID x 500.00 mm

1шт.

110

KRJ5868

HYDRAULIC HOSE,9.50 mm ID x 1750.00 mm

1шт.

193

KUR0091

BRACKET

1шт.

194

166052A1

BOLT

With Attached Washer

1шт.

Выбрано товаров: 39