Качественные детали и логистика
Оригинальные и аналоговые запчасти с доставкой по России, Казахстану и Беларуси
©2022 PartSell ООО "Система" ИНН 2463123282 ОГРН 1212400004838
Центральный офис: г. Красноярск, Академика Киренского, д.87, пом.4
Телефон: 8 (800) 777-65-74 Email: zakaz@partsell.ru
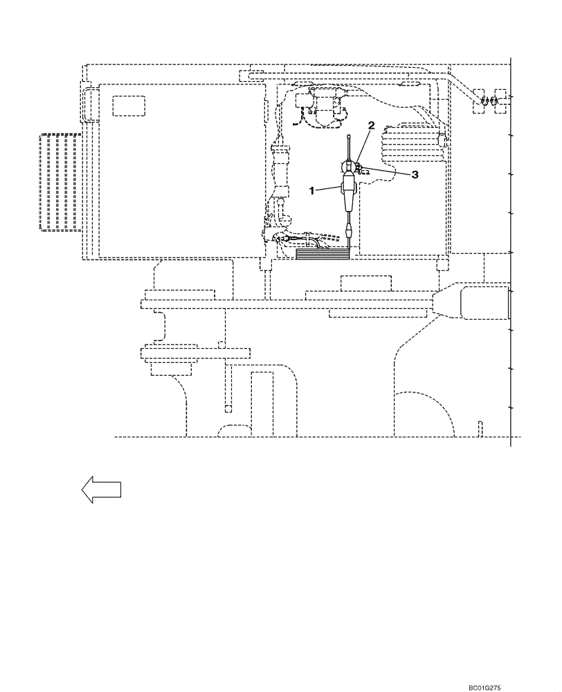
(09-57) - GREASE GUN - PUMP, LUBRICATION
№
Артикул
Название
Примечание
Количество
1
KUP0074
GUN, GREASE
GREASE GUN
1шт.
2
152772A1
HOLDER
3
166351A1
BOLT,Sems, M10 x 20mm
With Attached Washer
2шт.
Выбрано товаров: 0