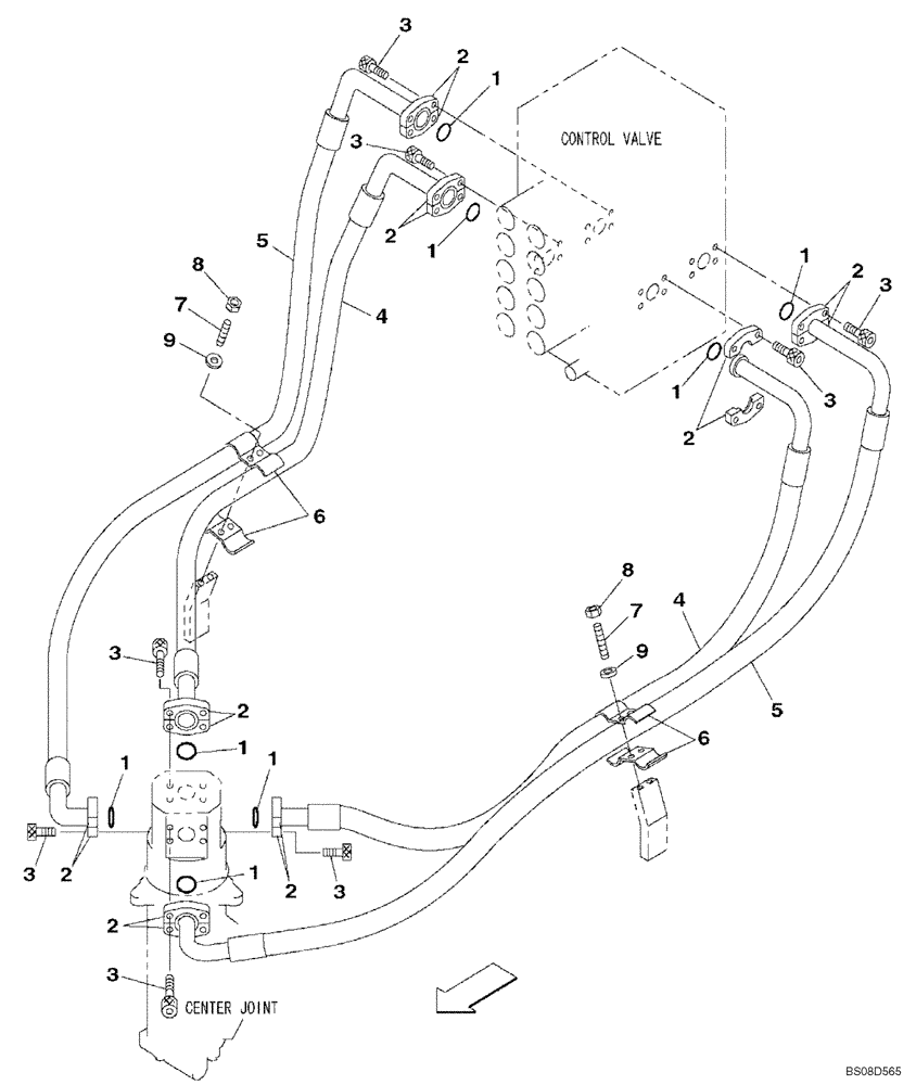
Запчасти Case CX350B (06-06) - HYDRAULIC CIRCUIT - TRAVEL (06) - POWER TRAIN

Схема запчастей Case CX350B - (06-06) - HYDRAULIC CIRCUIT - TRAVEL (06) - POWER TRAIN
2
8
3
6
1
1
3
3
1
1
2
1
5
2
2
9
1
3
9
1
3
3
3
6
1
2
2
4
7
4
3
5
2
7
3
8
FIT
1:1
100%

Артикул

Название

Примечание

Количество

1

155211A1

O-RING

8шт.

2

153459A1

FLANGE

16шт.

3

862-10030

HEX SOC SCREW,M10 x 30mm, Cl 12.9

32шт.

4

KSJ12410

HYDRAULIC HOSE

2шт.

5

KSJ12400

HYDRAULIC HOSE

2шт.

6

KSJ2724

CLAMP

4шт.

7

KSJ13770

BOLT

4шт.

8

829-1408

NUT,Hex, M8 x 1.25, Cl 10.9

4шт.

9

153081A1

WASHER

4шт.

Выбрано товаров: 9