Запчасти Case CX160C (10.400.BF) - RADIATOR - COMPONENTS (10) - ENGINE

Схема запчастей Case CX160C - (10.400.BF) - RADIATOR - COMPONENTS (10) - ENGINE
9
2
30
18
20
5
16
12
10
24
11
home
2
22
7
2
4
10
3
25
15
28
31
22
6
24
19
29
21
23
8
8
1
21
13
26
20
5
17
27
14
FIT
1:1
100%

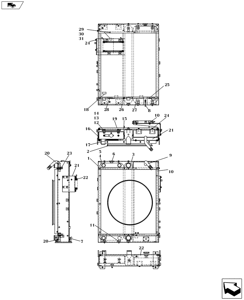
Артикул

Название

Примечание

Количество

1

LT002470

FRAME

1шт.

2

LW006590

SHROUD

1шт.

3

LN003270

COOLER

1шт.

4

LN003280

RADIATOR

1шт.

5

NSS

NOT SOLD SEPARAT

Radiator Core, Incl in 4

1шт.

6

LR015830

RADIATOR CAP

1шт.

7

LK00283

FAUCET

1шт.

8

LK00284

HOSE

1шт.

9

LN003290

OIL COOLER

1шт.

10

LA011210

BOLT,Spcl

14шт.

11

LQ000370

RUBBER SEAL

3шт.

12

LQ000380

RUBBER SEAL

3шт.

13

LH005030

COLLAR

3шт.

14

LA011220

BOLT,Spcl

3шт.

15

LE020280

PADDING

2шт.

16

LE020290

PADDING

1шт.

17

LE015330

SEAL PROTECTION

1шт.

18

LM001130

RADIATOR GRILLE

1шт.

19

LS004850

BRACKET

1шт.

20

LE016720

SEALING STRIP

2шт.

21

LS004860

BRACKET

1шт.

22

LN002050

FUEL COOLER

1шт.

23

LE015340

SEAL PROTECTION

2шт.

24

LA011230

BOLT,Spcl

8шт.

25

LE015350

SEAL PROTECTION

1шт.

26

LE020300

PADDING

1шт.

27

LE019740

PACKING

1шт.

28

LA013360

CLIP

2шт.

29

LH006090

COLLAR

2шт.

30

LA013370

BOLT

2шт.

31

LE020310

PADDING

1шт.

Выбрано товаров: 31