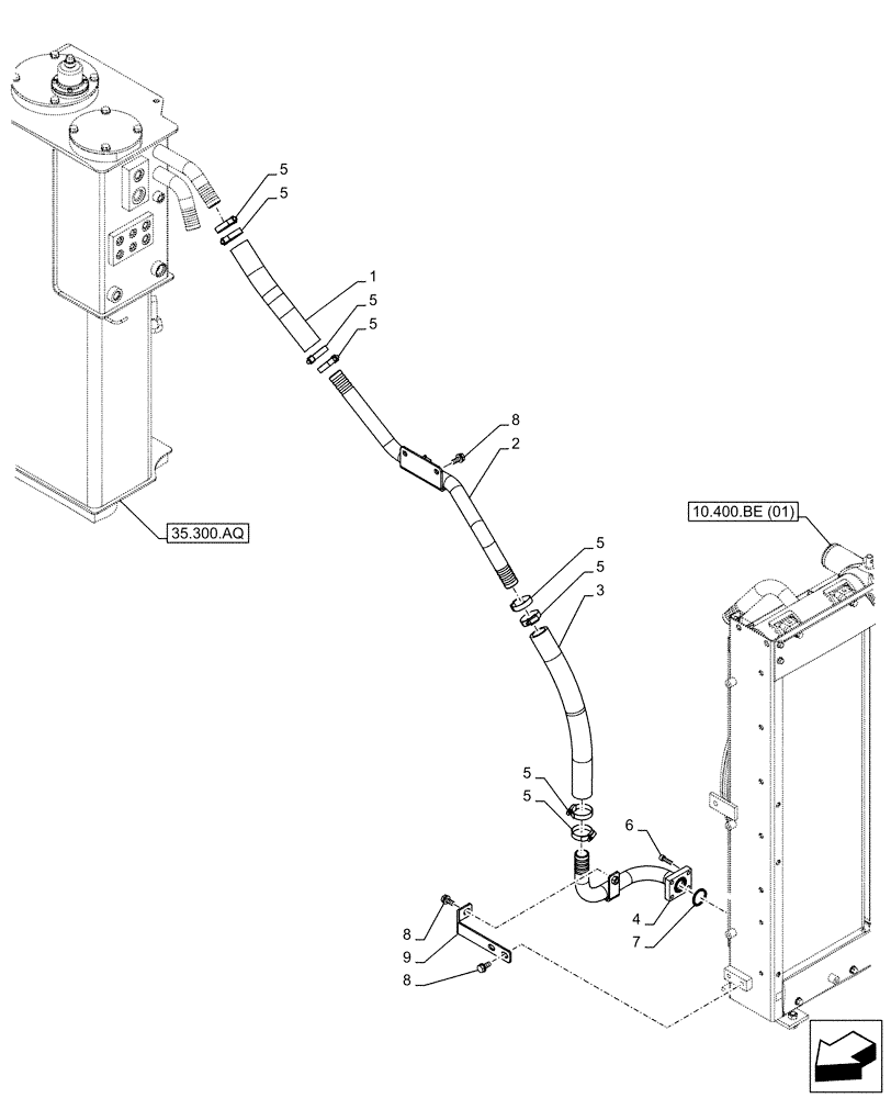
Запчасти Case CX160D LC (35.300.BC[01]) - OIL COOLER LINE (35) - HYDRAULIC SYSTEMS

Схема запчастей Case CX160D LC - (35.300.BC[01]) - OIL COOLER LINE (35) - HYDRAULIC SYSTEMS
35.300.aq
6
2
3
9
10.400.be (01)
4
8
8
5
1
5
5
8
7
5
5
5
5
5
FIT
1:1
100%

Артикул

Название

Примечание

Количество

1

KHJ13450

HYDRAULIC HOSE,34.00 mm ID x 300.00 mm

1шт.

2

KNJ22760

PIPE

1шт.

3

KNJ0254

HOSE

1шт.

4

KNJ12100

HYD TUBE,27.6 mm ID x 34 mm OD

1шт.

5

KHJ26080

HOSE CLAMP

8шт.

6

862-8030

HEX SOC SCREW,M8 x 30mm, Cl 12.9

4шт.

7

150830A1

O-RING

1шт.

8

166052A1

BOLT

4шт.

9

KNJ12310

BRACKET

1шт.

Выбрано товаров: 9