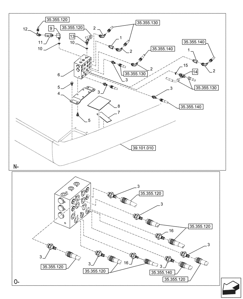
Запчасти Case CX245D SR LC (35.355.150) - VAR - 461558 - JOYSTICK, HYDRAULIC LINE, CONTROL VALVE, CONTROL PATTERN SELECTION (35) - HYDRAULIC SYSTEMS

Схема запчастей Case CX245D SR LC - (35.355.150) - VAR - 461558 - JOYSTICK, HYDRAULIC LINE, CONTROL VALVE, CONTROL PATTERN SELECTION (35) - HYDRAULIC SYSTEMS
35.355.120
3
16
3
3
7
4
3
5
3
3
15
11
6
9
2
3
3
14
16
5
2
2
12
10
2
10
13
8
3
1
1
35.355.130
35.355.130
35.355.130
39.101.010
35.355.140
35.355.140
35.355.140
35.355.140
35.355.120
35.355.120
35.355.120
35.355.120
35.355.120
35.355.120
FIT
1:1
100%

Артикул

Название

Примечание

Количество

1

KHV0373

STUD

G3/8" x G3/8" x 42mm

2шт.

2

KHJ38240

ELBOW

G3/8" x 3/8"

4шт.

3

KHJ38210

ADAPTER

G3/8" x 3/8"

8шт.

4

KRJ39910

BRACKET

1шт.

5

166052A1

BOLT

M1 x 25mm

8шт.

6

KRJ38520

VALVE

1шт.

7

KHN46720

PLATE

1шт.

8

KHJ38800

PLATE

1шт.

9

KHJ0719

ELBOW

ASSY, G1/4" x G1/4", Incl 10 (Qty 1)

1шт.

10

150960A1

O-RING,10.8mm ID x 2.4mm Width

2шт.

11

KHJ10790

FILTER SCREEN

1шт.

12

KHJ38230

ELBOW

G1/4" x 1/4"

1шт.

13

KHJ28710

ELBOW

ASSY, G1/4" x G3/8", Incl 10 (Qty 1)

1шт.

14

164107A1

TEE,3/8" ORB x 3/8" - 19 NPT x 3/8" - 19 NPT

ASSY, 3-G3/8", Incl 15

1шт.

15

150031A1

O-RING,10mm ID x 24mm OD

1шт.

16

KHJ38220

ADAPTER

G3/8" x 1/4"

2шт.

Выбрано товаров: 16