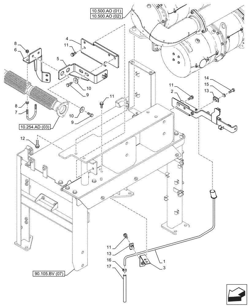
Запчасти Case CX250D LC LR (10.254.AD[04]) - EXHAUST SYSTEM, EXHAUST PIPE - ASN NGS7M1172 (10) - ENGINE

Схема запчастей Case CX250D LC LR - (10.254.AD[04]) - EXHAUST SYSTEM, EXHAUST PIPE - ASN NGS7M1172 (10) - ENGINE
90.105.bv (07)
9
3
13
6
16
8
17
10
7
12
11
2
15
10
11
11
1
11
4
14
9
5
10.500.ao (02)
10.500.ao (01)
10.254.ad (03)
8
13
FIT
1:1
100%

Артикул

Название

Примечание

Количество

1

KBH12720

PIPE

1шт.

2

KBH16950

BRACKET

1шт.

3

KBH12710

BRACKET

1шт.

4

KBH14730

BRACKET

1шт.

5

KBH14740

BRACKET

1шт.

6

KBH14750

BRACKET

1шт.

7

ADV1540

U-BOLT

1шт.

8

KHH11440

FLANGE NUT

4шт.

9

627-10030

BOLT,Hex, M10 x 1.5 x 30mm, Cl 10.9, Full Thd

4шт.

10

KHV10400

WASHER

4шт.

11

166347A1

BOLT,Sems, M10 x 30mm

7шт.

12

105R012Y045R

BOLT

8шт.

13

KLH11320

CLAMP

2шт.

14

627-10035

BOLT,Hex, M10 x 1.5 x 35mm, Cl 10.9, Full Thd

1шт.

15

150409A1

WASHER

1шт.

16

KHH0405

MOUNTING CLIP

1шт.

17

KHH14110

HOSE

750mm

1шт.

Выбрано товаров: 17