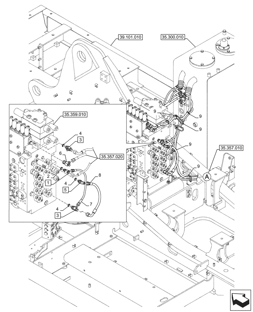
Запчасти Case CX290D LC SL (35.357.030) - PILOT VALVE, CONTROL VALVE LINE (35) - HYDRAULIC SYSTEMS

Схема запчастей Case CX290D LC SL - (35.357.030) - PILOT VALVE, CONTROL VALVE LINE (35) - HYDRAULIC SYSTEMS
35.359.010
4
4
3
4
3
9
8
1
9
6
7
2
9
5
9
9
35.300.010
39.101.010
35.357.020
35.357.010
FIT
1:1
100%

Артикул

Название

Примечание

Количество

1

159497A1

TEE

ASSY, G1/4" x G1/4" x G1/4", Incl 2

1шт.

2

150960A1

O-RING,10.8mm ID x 2.4mm Width

1шт.

3

163422A1

TEE

ASSY, G3/8" x G3/8" x G1/4", Incl 4 (Qty 1)

2шт.

4

150031A1

O-RING,10mm ID x 24mm OD

3шт.

5

KHJ28590

ELBOW

ASSY, G3/8" x G3/8", Incl 4 (Qty 1)

1шт.

6

KHJ1897

TEE

G3/8" x G3/8" x G1/4"

1шт.

7

KHJ2240

HOSE

6mm ID x 450mm

1шт.

8

KHJ2149

HOSE,9.5 mm ID x 360.00 mm

9mm ID x 360mm

1шт.

9

150496A1

MOUNTING CLIP

250mm

1шт.

Выбрано товаров: 9