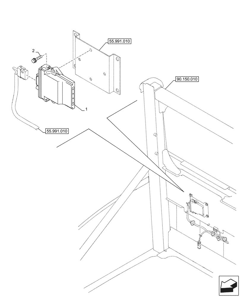
Запчасти Case CX290D LC SL (55.991.020) - VAR - 461860 - TELEMATIC SYSTEM, ELECTRONIC CONTROL UNIT (55) - ELECTRICAL SYSTEMS

Схема запчастей Case CX290D LC SL - (55.991.020) - VAR - 461860 - TELEMATIC SYSTEM, ELECTRONIC CONTROL UNIT (55) - ELECTRICAL SYSTEMS
55.991.010
2
1
90.150.010
55.991.010
FIT
1:1
100%

Артикул

Название

Примечание

Количество

1

47714488

ECU

1шт.

2

162056A1

BOLT,Spcl, M6 x 30mm

2шт.

Выбрано товаров: 2