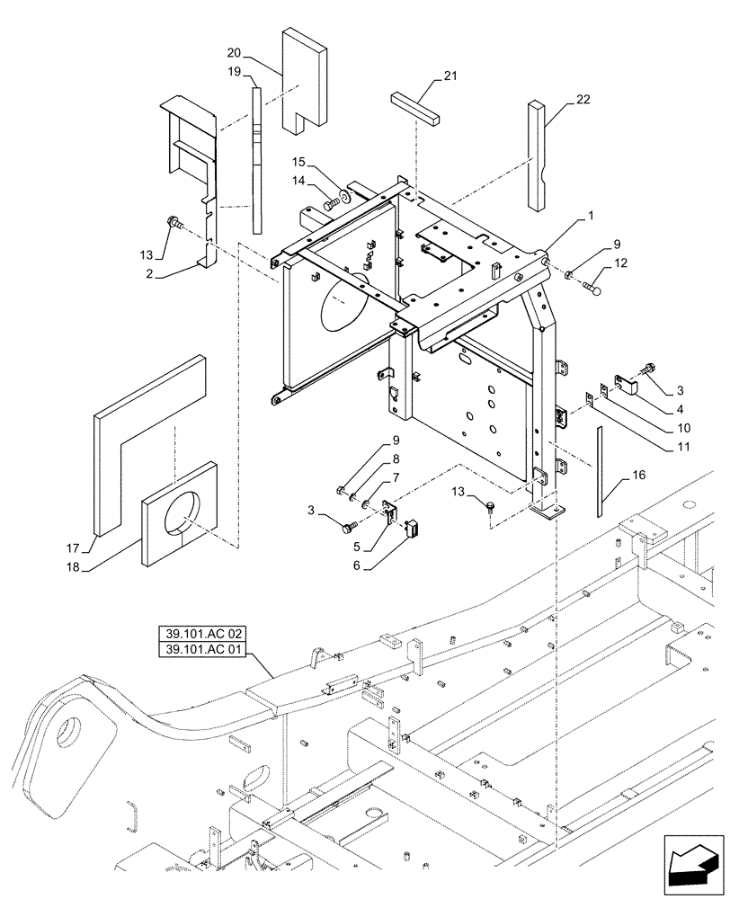
Запчасти Case CX500D LC (90.105.BV[02]) - STD + VAR - 461569, 481027 - HOUSING & COVERS, ADDITIONAL, HANDRAIL (90) - PLATFORM, CAB, BODYWORK AND DECALS

Схема запчастей Case CX500D LC - (90.105.BV[02]) - STD + VAR - 461569, 481027 - HOUSING & COVERS, ADDITIONAL, HANDRAIL (90) - PLATFORM, CAB, BODYWORK AND DECALS
39.101.ac 02
7
18
17
3
3
22
9
2
12
1
14
21
4
13
6
16
15
19
13
11
8
20
10
9
5
39.101.ac 01
FIT
1:1
100%

Артикул

Название

Примечание

Количество

1

KTN17811

FRAME

1шт.

2

KTN18350

COVER

1шт.

3

166347A1

BOLT,Sems, M10 x 30mm

4шт.

4

KHN11940

SUPPORT

1шт.

5

KHN39050

BRACKET

3шт.

6

KRN2098

STOP

3шт.

7

150409A1

WASHER

6шт.

8

892-11010

LOCK WASHER,M10

6шт.

9

829-1410

NUT,M10 x 1.5, Cl 10.9

8шт.

10

152719A1

SHIM

1шт.

11

158749A1

SHIM

1.2mm

1шт.

12

159091A1

STOP

2шт.

13

166352A1

BOLT

M12 x 30mm

8шт.

14

627-12030

BOLT,Hex, M12 x 1.75 x 30mm, Cl 10.9, Full Thd

1шт.

15

151161A1

WASHER

1шт.

16

KHN40090

CUSHION

1шт.

17

KTN16670

INSULATION

1шт.

18

KTN18190

SEAL

1шт.

19

KTN16700

SEAL

1шт.

20

KTN16980

INSULATION

1шт.

21

KRN2814

SEAL

1шт.

22

KTN16760

SEAL

1шт.

Выбрано товаров: 0