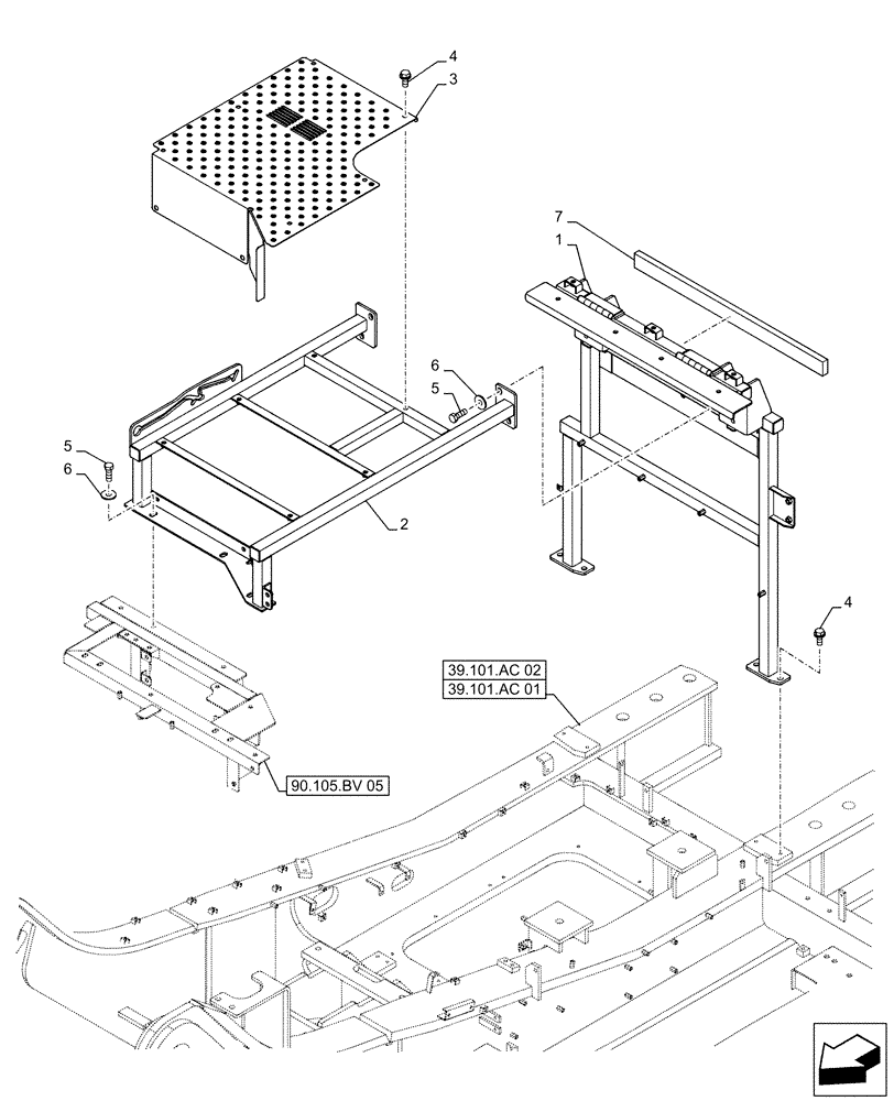
Запчасти Case CX500D LC (90.105.BV[04]) - STD + VAR - 461569, 481027 - HOUSING & COVERS, ADDITIONAL, HANDRAIL (90) - PLATFORM, CAB, BODYWORK AND DECALS

Схема запчастей Case CX500D LC - (90.105.BV[04]) - STD + VAR - 461569, 481027 - HOUSING & COVERS, ADDITIONAL, HANDRAIL (90) - PLATFORM, CAB, BODYWORK AND DECALS
90.105.bv 05
1
6
2
6
7
4
3
4
5
5
39.101.ac 01
39.101.ac 02
FIT
1:1
100%

Артикул

Название

Примечание

Количество

1

KTN17890

FRAME

1шт.

2

KTN17880

FRAME

1шт.

3

KTN18090

STEP

1шт.

4

166352A1

BOLT

M12 x 30mm

13шт.

5

627-12035

BOLT,Hex, M12 x 1.75 x 35mm, Cl 10.9, Full Thd

M12 x 35mm

7шт.

6

151161A1

WASHER

7шт.

7

KTN16990

SEAL

1шт.

Выбрано товаров: 7