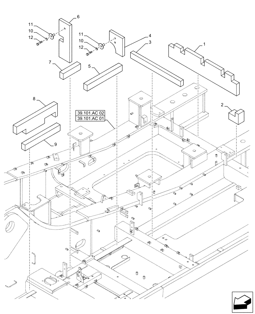
Запчасти Case CX500D LC (90.105.BV[09]) - STD + VAR - 461569, 481027 - HOUSING & COVERS, INSULATION, ADDITIONAL, HANDRAIL (90) - PLATFORM, CAB, BODYWORK AND DECALS

Схема запчастей Case CX500D LC - (90.105.BV[09]) - STD + VAR - 461569, 481027 - HOUSING & COVERS, INSULATION, ADDITIONAL, HANDRAIL (90) - PLATFORM, CAB, BODYWORK AND DECALS
39.101.ac 02
12
10
11
2
11
1
5
3
9
6
12
7
4
8
10
39.101.ac 01
FIT
1:1
100%

Артикул

Название

Примечание

Количество

1

KTN18280

SEAL

1шт.

2

KTN11700

SEAL

1шт.

3

KTN16500

SEAL

1шт.

4

KTN16510

SEAL

1шт.

5

KTN16470

SEAL

2шт.

6

KTN16490

SEAL

1шт.

7

KTN16460

SEAL

2шт.

8

KTN13930

SEAL

1шт.

9

KTN13940

SEAL

1шт.

10

895-11008

WASHER,9mm ID x 16mm OD x 1.6mm Thk

4шт.

11

KHH0358

RETAINER

4шт.

12

827-8040

BOLT,Hex, M8 x 1.25 x 40mm, Cl 10.9

4шт.

Выбрано товаров: 12