Запчасти Case CX500D LC (90.105.BV[11]) - COVER, CUSHION VALVE (90) - PLATFORM, CAB, BODYWORK AND DECALS

Схема запчастей Case CX500D LC - (90.105.BV[11]) - COVER, CUSHION VALVE (90) - PLATFORM, CAB, BODYWORK AND DECALS
39.101.ac 02
2
1
1
3
4
1
1
35.355.ar
1
39.101.ac 01
FIT
1:1
100%

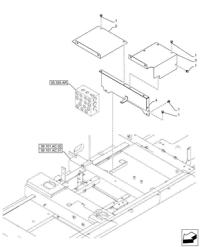
Артикул

Название

Примечание

Количество

1

166351A1

BOLT,Sems, M10 x 20mm

13шт.

2

KTJ16380

COVER

1шт.

3

KTJ16300

COVER

1шт.

4

KTJ16310

COVER

1шт.

Выбрано товаров: 4