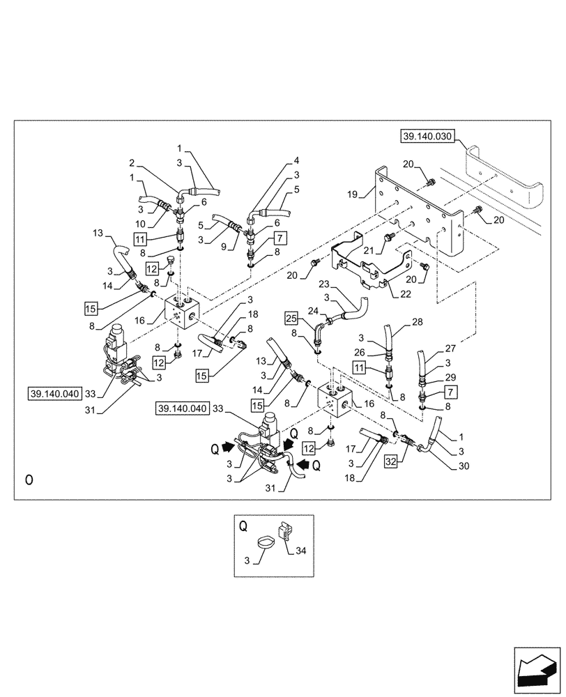
Запчасти Case CX750D RTC ME (39.140.030) - VAR - 481263 - LINES, HYDRAULIC, COUNTERWEIGHT (39) - FRAMES AND BALLASTING

Схема запчастей Case CX750D RTC ME - (39.140.030) - VAR - 481263 - LINES, HYDRAULIC, COUNTERWEIGHT (39) - FRAMES AND BALLASTING
39.140.030
8
28
8
4
3
8
8
3
11
22
1
3
20
3
3
29
8
19
16
12
6
20
3
8
3
2
3
33
1
3
14
3
8
7
26
33
3
8
8
23
31
21
13
8
8
14
17
18
34
3
3
3
11
31
12
20
10
30
6
32
3
15
24
5
9
20
3
16
7
15
1
17
25
8
15
12
5
27
39.140.040
39.140.040
18
13
FIT
1:1
100%

Артикул

Название

Примечание

Количество

1

157769A1

PLASTIC-RUBBER TUBE

Form Manifold to Cylinder (Qty 2); From manifold to Valve Relief (Qty 1)

3шт.

2

KHJ15340

HYDRAULIC HOSE

1шт.

3

150496A1

MOUNTING CLIP

1шт.

4

KHJ10350

HYDRAULIC HOSE,9.52 mm ID x 1500.00 mm

1шт.

5

KRH12830

FLEXIBLE SHEATH

From Manifold to Cylinder

2шт.

6

KHJ2234

TEE

1шт.

7

152128A1

HYD CONNECTOR,3/8" NPT O-Ring x 3/8" NPT

ASSY, Incl 8 (Qty 1)

2шт.

8

150031A1

O-RING,10mm ID x 24mm OD

12шт.

9

KHJ35720

HYDRAULIC HOSE

1шт.

10

ADV11490

HYDRAULIC HOSE

1шт.

11

159226A1

ADAPTER

ASSY, Incl 8 (Qty 1)

2шт.

12

153105A1

PLUG

ASSY, Incl 8 (Qty 1)

3шт.

13

KHR31090

PROTECTIVE SLEEVE

From Manifold to Manifold

2шт.

14

163764A1

HYDRAULIC HOSE

2шт.

15

KHJ28590

ELBOW

ASSY, Incl 8 (Qty 1)

3шт.

16

KUJ0298

MANIFOLD VALVE

2шт.

17

150770A1

PLASTIC-RUBBER TUBE

From Manifold to Cylinder

2шт.

18

KRJ4344

HYDRAULIC HOSE,9.50 mm ID x 530.00 mm

1шт.

19

KWB11360

BRACKET

1шт.

20

166052A1

BOLT

4шт.

21

166352A1

BOLT

3шт.

22

KWB12070

BRACKET

1шт.

23

KHR13930

PROTECTIVE SLEEVE

From Valve Stop to Manifold

1шт.

24

KHJ10360

HYDRAULIC HOSE,9.52 mm ID x 1700.00 mm

1шт.

25

KHJ28820

ELBOW

ASSY, Incl 8 (Qty 1)

1шт.

26

KAJ4281

HYDRAULIC HOSE,9.50 mm ID x 1400.00 mm

1шт.

27

KRH12300

PLASTIC-RUBBER TUBE

From Manifold to Cylinder

1шт.

28

157768A1

PLASTIC-RUBBER TUBE

From Manifold to Cylinder

1шт.

29

KHJ35730

HYDRAULIC HOSE

1шт.

30

KHJ2428

HOSE ASSY.,9.50 mm ID x 1550.00 mm

1шт.

31

KWR11040

WIRE HARNESS

From Solenoid Valve to Switch Toggle

1шт.

32

164107A1

TEE,3/8" ORB x 3/8" - 19 NPT x 3/8" - 19 NPT

ASSY, Incl 8 (Qty 1)

1шт.

33

KUJ0288

SOLENOID VALVE

ASSY

2шт.

34

KHR10220

MOUNTING CLIP

3шт.

Выбрано товаров: 34