Запчасти Case 115CL (108) - No Description Provided

Схема запчастей Case 115CL - (108) - No Description Provided
FIT
1:1
100%

Артикул

Название

Примечание

Количество

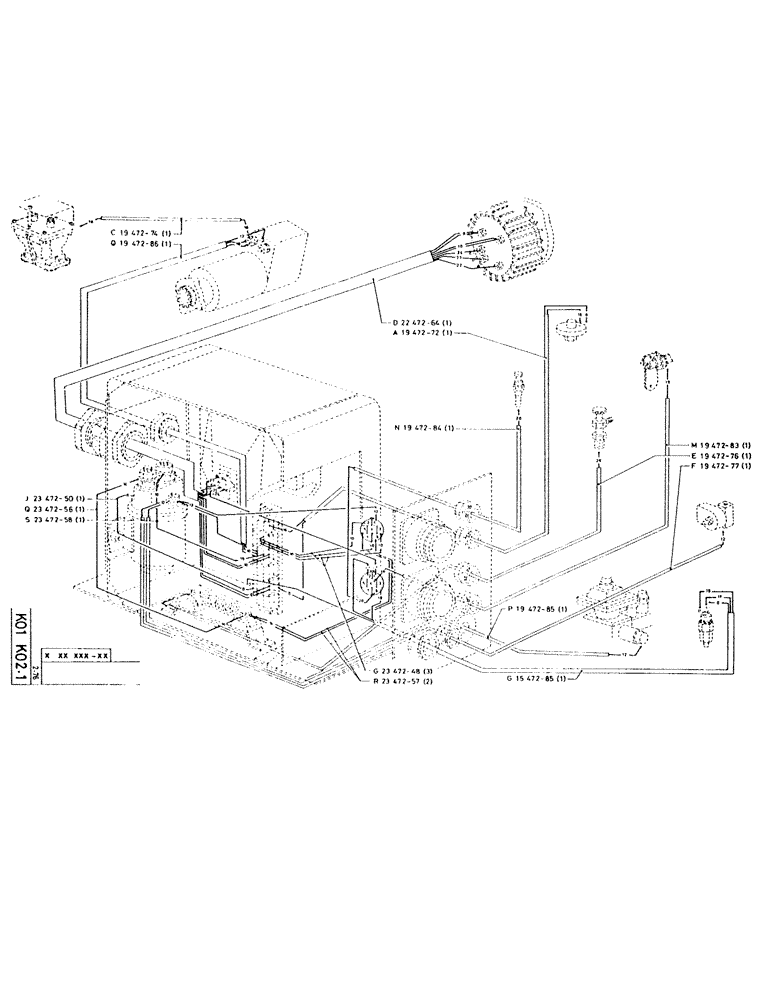
P1947274

CABLE

1шт.

P1947286

CABLE

1шт.

P2347250

ELECTRICAL WIRE

WIRE

1шт.

P2347256

ELECTRICAL WIRE

1шт.

P2347258

ELECTRICAL WIRE

WIRE

1шт.

P2247264

CABLE

1шт.

P1947272

1шт.

P1947284

CABLE

1шт.

P2347248

ELECTRICAL WIRE

WIRE

3шт.

P2347257

ELECTRICAL WIRE

2шт.

P1947285

CABLE

1шт.

P1547285

CABLE

1шт.

P1947283

CABLE

1шт.

P1947276

CABLE

1шт.

P1947277

1шт.

Выбрано товаров: 15