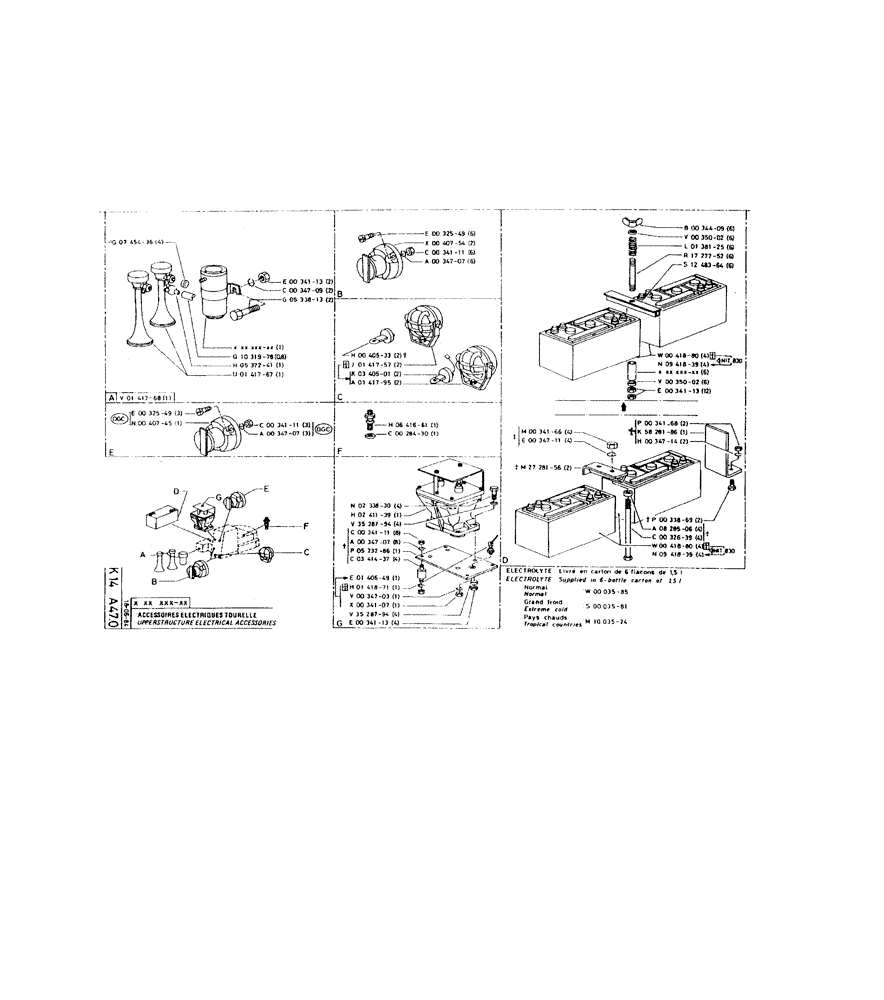
Запчасти Case 220 (245) - UPPERSTRUCTURE ELECTRICAL ACCESSORIES (06) - ELECTRICAL SYSTEMS

Схема запчастей Case 220 - (245) - UPPERSTRUCTURE ELECTRICAL ACCESSORIES (06) - ELECTRICAL SYSTEMS
FIT
1:1
100%

Артикул

Название

Примечание

Количество

P745436

WASHER

7 x 4 x 16

4шт.

P141768

BUZZER

HORN

1шт.

P32549

SCREW

/BOLT, M6 x 16, centralized lubrication

3шт.

P40745

PEDESTAL

SOCKET, centralized lubrication

1шт.

P34113

NUT

2шт.

P34709

WASHER

2шт.

P533813

SCREW

/BOLT, M8 x 16

2шт.

P533813-Screw/Bolt. See NIT 3252.

1шт.

P1031978

TUBE

PIPE

1шт.

P537241

TEE

T PIECE

1шт.

P141767

HORN

1шт.

15896221

NUT,Hex, M6, 5.20mm High, Cl 10

Centralized lubrication M6, Cl 10

3шт.

P34707

WASHER

centralized lubrication

3шт.

P32549

SCREW

/BOLT, M6 x 16

6шт.

P40754

PEDESTAL

SOCKET

2шт.

15896221

NUT,Hex, M6, 5.20mm High, Cl 10

6шт.

P34707

WASHER

6шт.

P40533

LAMP

BULB, no longer exists on new model

2шт.

P141757

SPOTLIGHT

HEADLIGHT, no longer sold

2шт.

P340501

LAMP

BULB

2шт.

P141795

SPOTLIGHT

HEADLIGHT

2шт.

P641661

PROBE

1шт.

P28430

COMPOSITE SEAL

METAL PLASTICS

1шт.

P233830

SCREW

/BOLT, M8 x 40

4шт.

P241139

RELAY

1шт.

P3528794

WASHER

8.25 x 6 x 20

4шт.

15896221

NUT,Hex, M6, 5.20mm High, Cl 10

No longer exists on new model M6, Cl 10

8шт.

P34707

WASHER

no longer exists on new model

8шт.

P523286

SUPPORT

no longer exists on new model

1шт.

P341437

SHOCK ABSORBER

SHOCK-ABSORBER, no longer exists on new model

4шт.

P140649

DIODE

1шт.

P141871

DIODE

no longer sold

1шт.

P34703

WASHER

1шт.

P34107

NUT

1шт.

P3528794

WASHER

8.25 x 6 x 20

4шт.

P34113

NUT

4шт.

See NIT 3292

1шт.

P34409

NUT, WING

WING NUT

6шт.

P35002

WASHER

6шт.

P35002 Washer. See EEX9001E; NITS 3252, 3262, 3263, 3275, 3292, 3293; SAT 47

1шт.

P138125

COMPRESSION SPRING

COMPRESSION SPR

6шт.

P1727752

TRUSS ROD

TIE BAR

6шт.

P1248364

PROFILE

6шт.

P41880

BATTERY, no longer sold

4шт.

P41880 Battery. See NIT 830

1шт.

P941839

DRY BATTERY

4шт.

P941839 Battery. See NIT 830

1шт.

P35002

WASHER

6шт.

P34113

NUT

12шт.

100016

NUT,M10 x 1.5, Cl 8

No Longer Exists on New Model M10, Cl 8

4шт.

P34711

WASHER

no longer exists on new model

4шт.

P34711 Washer. See NITS 1128, 3275

1шт.

P2728156

CONNECTING STRI, no longer exists on new model

2шт.

P34168

NUT

no longer exists on new model

2шт.

P34168 Nut. See NIT 3210

1шт.

P5828186

SHIN

BRACKET, no longer exists on new model

1шт.

P34714

WASHER, LOCK

WASHER, no longer exists on new model

2шт.

P33869

BOLT,Hex, M14 x 30

No longer exists on new model Hex, M14 x 30

2шт.

P33869 Screw/Bolt. See NIT 3203

1шт.

P828506

WASHER

11 x 8 x 20, no longer exists on new model

4шт.

P32639

SCREW

/BOLT, M10 x 265, no longer exists on new model

4шт.

P41880

BATTERY, no longer sold

4шт.

P941839

DRY BATTERY

4шт.

Выбрано товаров: 63