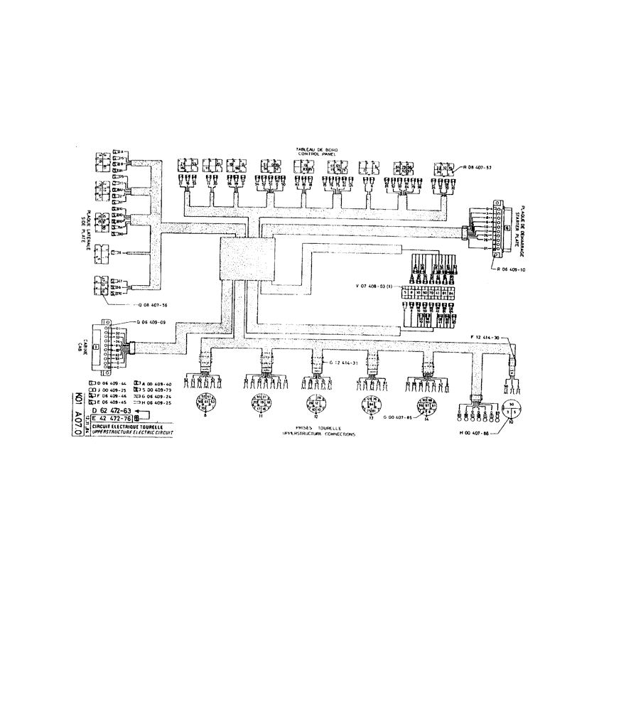
Запчасти Case 220 (226) - UPPERSTRUCTURE ELECTRIC CIRCUIT (06) - ELECTRICAL SYSTEMS

Схема запчастей Case 220 - (226) - UPPERSTRUCTURE ELECTRIC CIRCUIT (06) - ELECTRICAL SYSTEMS
FIT
1:1
100%

Артикул

Название

Примечание

Количество

P840756

CONNECTION,ELECTRIC

CONNECTOR

1шт.

P640909

CONNECTION,ELECTRIC

CONNECTOR

1шт.

P640944

CLIP,ELECTRICAL

CIRCLIP

1шт.

P40940

TERMINAL

1шт.

P40940 Wire Connector. See NITS 3216, 3252.

1шт.

P40925

TERMINAL CONNECTOR

CLAMP

1шт.

P40925 Clamp. See NIT 3252

1шт.

P40979

CLIP,ELECTRICAL

CIRCLIP

1шт.

P640946

CLIP,ELECTRICAL

CIRCLIP

1шт.

P640924

CONTACT

1шт.

P640945

CLIP,ELECTRICAL

CIRCLIP

1шт.

P640945-CIRCLIP. See NEXMP00190.

1шт.

P640925

CONTACT

1шт.

P6247263

HARNESS

WIRE HARNESS

1шт.

P4247276

WIRE HARNESS, no longer sold

1шт.

P1241431

LIGHT FAIRING

CAP

1шт.

P40785

MAKING-UP

1шт.

P40786

MAKING-UP

1шт.

P1241430

LIGHT FAIRING

CAP

1шт.

P740803

CONNECTING STRIP

CONNECTING STRI

1шт.

P840757

CASE

CONNECTOR

1шт.

P640910

CONNECTION,ELECTRIC

CONNECTOR

1шт.

P6247263

HARNESS

WIRE HARNESS

1шт.

P4247276

WIRE HARNESS, no longer sold

1шт.

Выбрано товаров: 24