Запчасти Case 220 (234) - ENGINE ELECTRIC CIRCUIT (06) - ELECTRICAL SYSTEMS

Схема запчастей Case 220 - (234) - ENGINE ELECTRIC CIRCUIT (06) - ELECTRICAL SYSTEMS
FIT
1:1
100%

Артикул

Название

Примечание

Количество

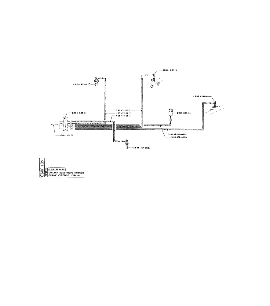
P8547205

ELECTRICAL WIRE

WIRE

1шт.

P3547206

ELECTRICAL WIRE

WIRE

1шт.

P3547205

ELECTRICAL WIRE

WIRE

1шт.

P8547206

ELECTRICAL WIRE

WIRE

1шт.

P8547207

ELECTRICAL WIRE

WIRE

1шт.

Выбрано товаров: 5