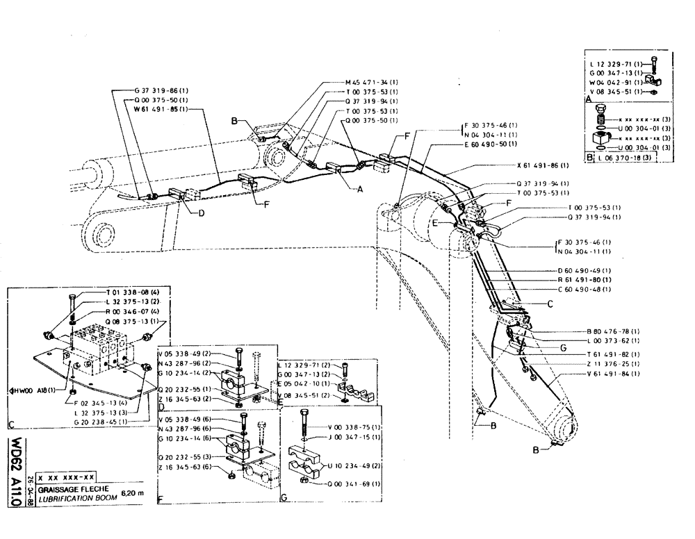
Запчасти Case 220B (WD62 A11.0) - LUBRIFICATION BOOM - 6,20 M (09) - BOOMS

Схема запчастей Case 220B - (WD62 A11.0) - LUBRIFICATION BOOM - 6,20 M (09) - BOOMS
j00347-15
b80476-78
c60490-48
q00375-50
t00375-53
t00375-53
n04304-11
l12329-71
v61491-84
f02345-13
v08345-51
f30375-46
l32375-13
q20232-55
g10234-14
z16345-63
l12329-71
w61491-85
t00375-53
q00375-50
r61491-80
v00338-75
x61491-86
l06370-18
u10234-49
q08375-13
t01338-08
q20232-55
g00347-13
n43287-96
u00304-01
g00347-13
v05338-49
n43287-96
n04304-11
q00341-69
g10234-14
g37319-86
w04042-91
m45471-34
r00346-07
g20238-45
l00373-62
q37319-94
t61491-82
q37319-94
e05042-10
q37319-94
v08345-51
z11376-25
f30375-46
t00375-53
e60490-50
u00304-01
l32375-13
z16345-63
d60490-49
v05338-49
FIT
1:1
100%

Артикул

Название

Примечание

Количество

g37319-86

G3731986

HOSE

1шт.

q00375-50

Q37550

UNION

1шт.

w61491-85

W6149185

1шт.

m45471-34

M4547134

PIPE

1шт.

t00375-53

T37553

UNION

1шт.

q37319-94

Q3731994

HOSE

1шт.

q00375-50

Q37550

UNION

1шт.

f30375-46

F3037546

UNION

1шт.

Union N°

1шт.

n04304-11

N430411

O-RING

1шт.

Seal N°

1шт.

e60490-50

E6049050

1шт.

x61491-86

X6149186

1шт.

q37319-94

Q3731994

HOSE

1шт.

d60490-49

D6049049

1шт.

r61491-80

R6149180

1шт.

c60490-48

C6049048

1шт.

b80476-78

B8047678

1шт.

l00373-62

L37362

UNION

1шт.

t61491-82

T6149182

1шт.

z11376-25

Z1137625

PIPE

SPARE PART

1шт.

v61491-84

V6149184

1шт.

l12329-71

L1232971

SCREW,Hex Skt Hd, M12 x 30mm, Cl 10.9

1шт.

g00347-13

G34713

WASHER

1шт.

w04042-91

W404291

SHIN

1шт.

v08345-51

337475

NUT,M12, Cl 10

1шт.

l06370-18

L637018

FITTING

3шт.

u00304-01

U30401

O-RING,2.5mm Thk x 18.5mm ID

3шт.

t01338-08

T133808

SCREW

4шт.

l32375-13

L3237513

UNION

2шт.

r00346-07

R34607

WASHER

4шт.

q08375-13

Q837513

UNION

1шт.

f02345-13

F234513

SAFETY NUT

4шт.

l32345-13

L3234513

4шт.

g20238-45

G2023845

1шт.

v05338-49

120071

BOLT,Hex, M10 x 65, 8.8

2шт.

n43287-96

N4328796

WASHER

2шт.

g10234-14

G1023414

SHIN

2шт.

q20232-55

Q2023255

1шт.

z16345-63

Z1634563

SAFETY NUT

2шт.

l12329-71

L1232971

SCREW,Hex Skt Hd, M12 x 30mm, Cl 10.9

2шт.

g00347-13

G34713

WASHER

2шт.

e05042-10

E504210

SHIN

2шт.

v08345-51

337475

NUT,M12, Cl 10

2шт.

v05338-49

120071

BOLT,Hex, M10 x 65, 8.8

6шт.

n43287-96

N4328796

WASHER

6шт.

g10234-14

G1023414

SHIN

6шт.

q20232-55

Q2023255

3шт.

z16345-63

Z1634563

SAFETY NUT

6шт.

v00338-75

120092

BOLT,M16 x 70mm, Cl 8.8

1шт.

j00347-15

J34715

WASHER

1шт.

u10234-49

U1023449

SHIN

2шт.

q00341-69

Q34169

NUT

1шт.

Выбрано товаров: 53