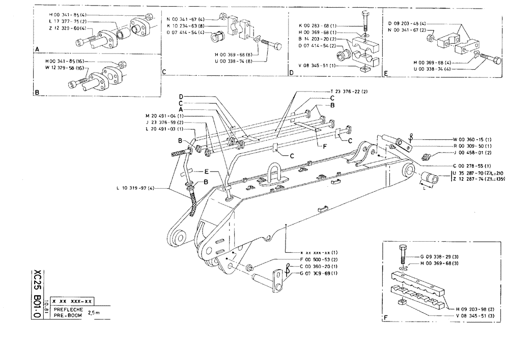
Запчасти Case 75C (XC25 B01.0) - PRE-BOOM - 2,5 M (09) - BOOMS

Схема запчастей Case 75C - (XC25 B01.0) - PRE-BOOM - 2,5 M (09) - BOOMS
m20491-04
g07309-69
l17377-75
j00458-01
n00341-67
w12329-58
g09338-29
h00369-68
h00369-68
u00338-74
k10234-63
d07414-54
l20491-03
v08345-51
r00309-50
d07414-54
f00500-53
k00283-68
h00369-68
t23376-22
j23376-59
h00369-68
c00360-20
u00338-74
w00360-15
v08345-51
l10319-97
h00341-85
u35287-70
z12329-60
h00341-85
b14203-20
z12287-74
d09203-48
h09203-98
n00341-67
c00278-55
FIT
1:1
100%

Артикул

Название

Примечание

Количество

h00341-85

43362

NUT,M8 x 1.25, Cl 10

4шт.

l17377-75

P1737775

JUNCTION

2шт.

z12329-60

P1232960

SCREW

/BOLT, M8 x 75

4шт.

h00341-85

43362

NUT,M8 x 1.25, Cl 10

16шт.

w12329-58

P1232958

SCREW

/BOLT, M8 x 45

16шт.

n00341-67

337475

NUT,M12, Cl 10

4шт.

k10234-63

P1023463

SHIN

8шт.

d07414-54

P741454

BUSHING

4шт.

h00369-68

P36968

BRAKE

locking

8шт.

u00338-74

P33874

SCREW

/BOLT, M12 x 60

8шт.

k00283-68

P28368

SCREW

1шт.

h00369-68

P36968

BRAKE

locking

1шт.

b14203-20

P1420320

SHIN

2шт.

d07414-54

P741454

BUSHING

2шт.

v08345-51

100016

NUT,M10 x 1.5, Cl 8

1шт.

d09203-48

P920348

SHIN

4шт.

n00341-67

337475

NUT,M12, Cl 10

2шт.

h00369-68

P36968

BRAKE

locking

4шт.

u00338-74

P33874

SCREW

/BOLT, M12 x 60

4шт.

g09338-29

P933829

SCREW

/BOLT, M12 x 1,75 x 85

3шт.

h00369-68

P36968

BRAKE

locking

3шт.

h09203-98

P920398

SHIN

2шт.

v08345-51

100016

NUT,M10 x 1.5, Cl 8

3шт.

m20491-04

P2049104

PIPE

1шт.

j23376-59

J2337659

PIPE

2шт.

l20491-03

P2049103

PIPE

1шт.

l10319-97

P1031997

HOSE

4шт.

t23376-22

P2337622

PIPE

2шт.

f00500-53

P50053

SHAFT LOCK

2шт.

c00360-20

P36020

SPLIT PIN/SAFETY PIN

1шт.

g07309-69

P730969

HEADED PIN

1шт.

w00360-15

P36015

SPLIT PIN/SAFETY PIN

1шт.

r00309-50

P30950

HEADED PIN

1шт.

j00458-01

J45801

LUBE NIPPLE,M8 x 1.25

2шт.

c00278-55

P27855

SHAFT LOCK

1шт.

u35287-70

U3528770

BUSHING

L=210

2шт.

z12287-74

P1228774

BUSHING

L=135

2шт.

Not Existing on New Model

1шт.

Выбрано товаров: 38