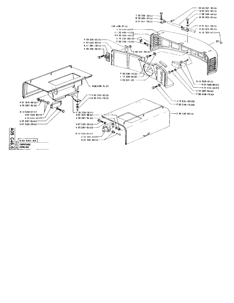
Запчасти Case 90BCL (045) - COWLING (05) - UPPERSTRUCTURE CHASSIS

Схема запчастей Case 90BCL - (045) - COWLING (05) - UPPERSTRUCTURE CHASSIS
FIT
1:1
100%

Артикул

Название

Примечание

Количество

A134596

SAFETY NUT

4шт.

V3528794

WASHER

4шт.

R1352001

LOCK ASSY

1шт.

H152083

LOCK, CYLINDER

LOCK-CYLINDER

1шт.

XXXXXXXX

1шт.

V3528794

WASHER

4шт.

43128

BOLT,M8 x 1.25 x 30mm, Cl 8.8

4шт.

R8043874

SHUTTER

1шт.

715853R1

RING

3шт.

X35418

RIVET

3шт.

C2622876

MUDFLAP

1шт.

A134596

SAFETY NUT

4шт.

V3528794

WASHER

4шт.

43128

BOLT,M8 x 1.25 x 30mm, Cl 8.8

4шт.

V3528794

WASHER

4шт.

R1352001

LOCK ASSY

1шт.

XXXXXXXX

1шт.

H152083

LOCK, CYLINDER

LOCK-CYLINDER

1шт.

D8043885

SHUTTER

SPARE PART

1шт.

P922865

PLATE

1шт.

C5140387

VENT MANIFOLD

SPARE PART

1шт.

K4128118

CLEVIS

1шт.

43140

BOLT,Hex, M10 x 1.5 x 30mm, Cl 8.8

2шт.

G34598

SAFETY NUT

2шт.

43127

BOLT,Hex, M8 x 1.25 x 25mm, Cl 8.8

2шт.

L1722894

PLATE

2шт.

U3123

GASKET

1шт.

U1523469

PLATE

26шт.

43127

BOLT,Hex, M8 x 1.25 x 25mm, Cl 8.8

26шт.

U8143881

COWL

1шт.

XXXXXXXX

1шт.

L3240411

SIEVE

SPARE PART

1шт.

K3240410

SIEVE

SPARE PART

1шт.

U1523469

PLATE

10шт.

43127

BOLT,Hex, M8 x 1.25 x 25mm, Cl 8.8

10шт.

300389

BOLT,M12 x 1.75 x 35mm, Cl 8.8

4шт.

B828507

WASHER

4шт.

Q104158

END FITTING

2шт.

M35730

SPLIT PIN/SAFETY PIN

2шт.

N332385

GRAB RAIL

1шт.

300389

BOLT,M12 x 1.75 x 35mm, Cl 8.8

4шт.

B828507

WASHER

4шт.

R104159

SUPPORT

1шт.

N332385

GRAB RAIL

1шт.

K1352041

HANDLE

1шт.

R1352001

LOCK ASSY

1шт.

H152083

LOCK, CYLINDER

LOCK-CYLINDER

1шт.

XXXXXXXX

1шт.

V3528794

WASHER

4шт.

43127

BOLT,Hex, M8 x 1.25 x 25mm, Cl 8.8

4шт.

Выбрано товаров: 50