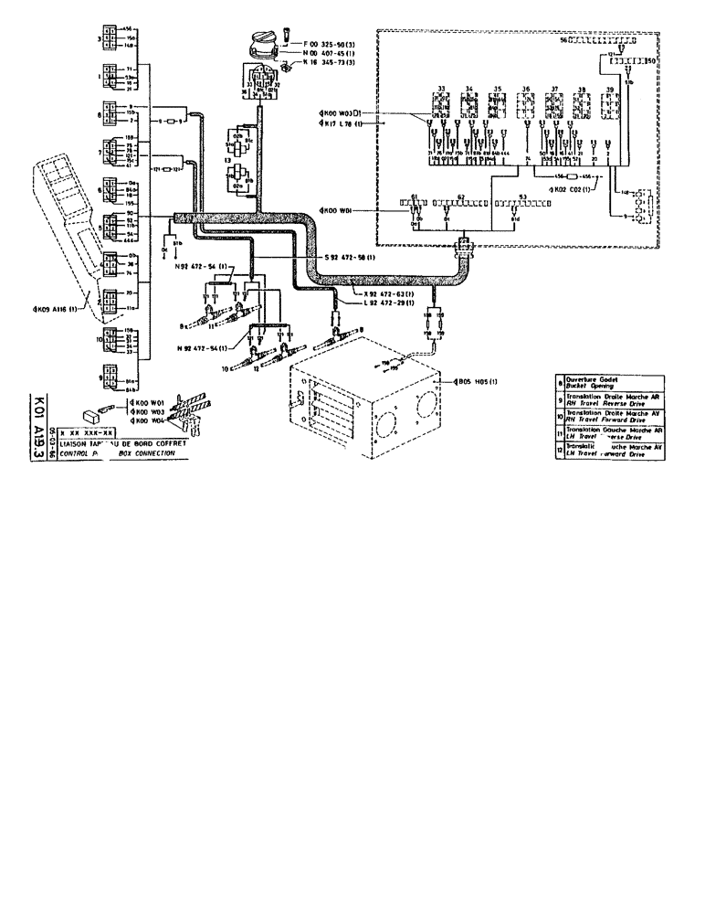
Запчасти Case 90BCL (315) - CONTROL PANEL BOX CONNECTION (06) - ELECTRICAL SYSTEMS

Схема запчастей Case 90BCL - (315) - CONTROL PANEL BOX CONNECTION (06) - ELECTRICAL SYSTEMS
FIT
1:1
100%

Артикул

Название

Примечание

Количество

KW01

1шт.

KW03

1шт.

KW04

1шт.

K9A116

1шт.

F32550

SCREW,M6 x 30mm

3шт.

N40745

PEDESTAL

1шт.

K1634573

NUT

3шт.

N9247254

ELECTRICAL WIRE

SPARE PART

1шт.

N9247254

ELECTRICAL WIRE

SPARE PART

1шт.

d1

KW03

1шт.

K17L78

1шт.

KW01

1шт.

S9247258

HARNESS

SPARE PART

1шт.

X9247263

HARNESS

SPARE PART

1шт.

L9247229

CABLE

1шт.

B5H05

1шт.

K2C02

1шт.

Выбрано товаров: 17