Запчасти Case 90BCL (328) - UPPERSTRUCTURE ELECTRIC CIRCUIT (06) - ELECTRICAL SYSTEMS

Схема запчастей Case 90BCL - (328) - UPPERSTRUCTURE ELECTRIC CIRCUIT (06) - ELECTRICAL SYSTEMS
FIT
1:1
100%

Артикул

Название

Примечание

Количество

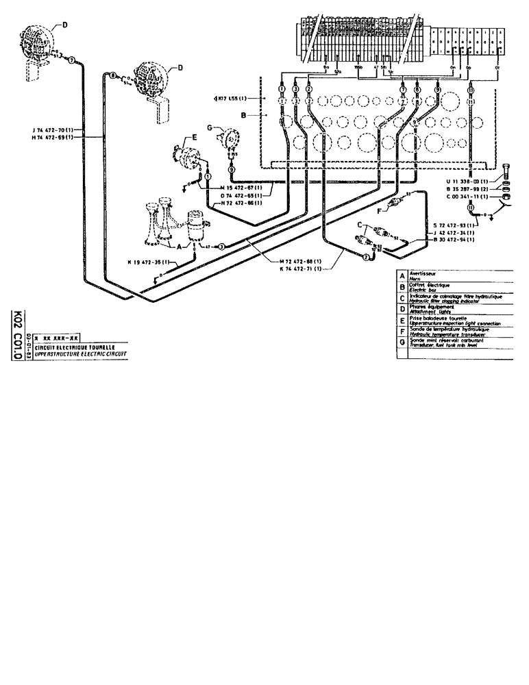
J7447270

CABLE

1шт.

H7447269

CABLE

1шт.

K1947235

ELECTRICAL WIRE

WIRE

1шт.

K17L55

1шт.

M1547267

ELECTRICAL WIRE

WIRE

1шт.

D7447265

CABLE

1шт.

N7247266

CABLE

1шт.

M7247288

CABLE

1шт.

K7447271

CABLE

1шт.

U1133803

SCREW,Hex, M6 x 22

1шт.

B3528799

WASHER

1шт.

15896221

NUT,Hex, M6, 5.20mm High, Cl 10

1шт.

S7247293

CABLE

1шт.

J4247234

CABLE

1шт.

B3047294

CABLE

1шт.

a

HORN

1шт.

b

BOX electric

1шт.

c

FILTER hydraulic clogging indicator

1шт.

d

LIGHTS attachment

1шт.

e

LIGHT upperstructure inspection, connection

1шт.

f

TRANSDUCER hydraulic temperature

1шт.

g

TRANSDUCER fuel ta min. level

1шт.

Выбрано товаров: 0