Запчасти Case 90BCL (330) - UPPERSTRUCTURE ELECTRIC CIRCUIT (06) - ELECTRICAL SYSTEMS

Схема запчастей Case 90BCL - (330) - UPPERSTRUCTURE ELECTRIC CIRCUIT (06) - ELECTRICAL SYSTEMS
FIT
1:1
100%

Артикул

Название

Примечание

Количество

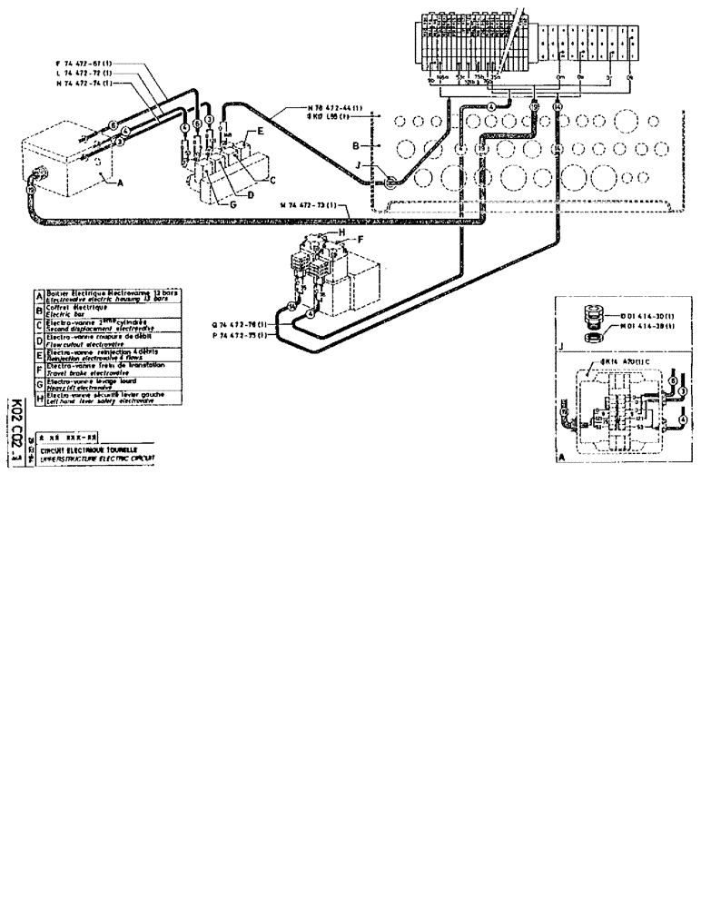
F7447267

CABLE

1шт.

L7447272

CABLE

1шт.

N7447274

CABLE

1шт.

N7847244

CABLE

1шт.

K17L55

1шт.

M7447273

CABLE

1шт.

Q7447276

CABLE

1шт.

P7447275

CABLE

1шт.

D141430

GLAND

1шт.

M141438

NUT

1шт.

c

K14A70

1шт.

a

ELECTROVALVE electric housing, 13 bars

1шт.

b

BOX electric box

1шт.

c

ELECTROVALVE second displacement

1шт.

d

ELECTROVALVE flow cutout

1шт.

e

ELECTROVALVE reinjection, 4 flows

1шт.

f

ELECTROVALVE travel brake

1шт.

g

ELECTROVALVE heavy lt

1шт.

h

ELECTROVALVE left hand lever safety

1шт.

Выбрано товаров: 19