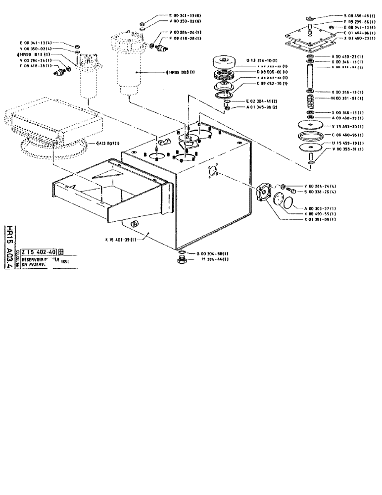
Запчасти Case 90BCL (309) - OIL RESERVOIR 165L (07) - HYDRAULIC SYSTEM

Схема запчастей Case 90BCL - (309) - OIL RESERVOIR 165L (07) - HYDRAULIC SYSTEM
FIT
1:1
100%

Артикул

Название

Примечание

Количество

A13B07

1шт.

43362

NUT,M8 x 1.25, Cl 10

4шт.

715853R1

RING

4шт.

HR99B19

1шт.

V28424

COMPOSITE SEAL

1шт.

F841828

ELECTRO/HYD CONTACT

1шт.

43362

NUT,M8 x 1.25, Cl 10

6шт.

V35002

WASHER

6шт.

V28424

COMPOSITE SEAL

1шт.

F841828

ELECTRO/HYD CONTACT

1шт.

HR99B08

1шт.

G1337410

PLUG

1шт.

XXXXXXXX

1шт.

D850566

CARTRIDGE

1шт.

XXXXXXXX

1шт.

C945279

SEAL

1шт.

E230441

O-RING,0.103" Thk x 0.362" ID, -110, Cl 5, 75 Duro

2шт.

A134596

SAFETY NUT

2шт.

S45648

WASHER

1шт.

E929986

STEM

1шт.

43362

NUT,M8 x 1.25, Cl 10

8шт.

C140486

COVER

1шт.

X346033

GASKET,5mm Thk

1шт.

P46023

WASHER

Washer

1шт.

X34613

WASHER

1шт.

XXXXXXXX

1шт.

X34613

WASHER

1шт.

M38191

COMPRESSION SPRING

1шт.

X34613

WASHER

1шт.

P46023

WASHER

Washer

1шт.

V1545320

WASHER

1шт.

C646095

SEAL

1шт.

U1545319

WASHER

1шт.

V35531

SPLIT PIN

1шт.

V28424

COMPOSITE SEAL

4шт.

43138

BOLT,Hex, M10 x 1.5 x 20mm, Cl 8.8

4шт.

A30337

O-RING

1шт.

X45055

SIGHTGLASS

1шт.

X130109

BODY

1шт.

G30458

O-RING,0.103" Thk x 1.174" ID, -123, Cl 5, 75 Duro

1шт.

17374-44

1шт.

X1540239

OIL RESERVOIR

1шт.

Выбрано товаров: 42