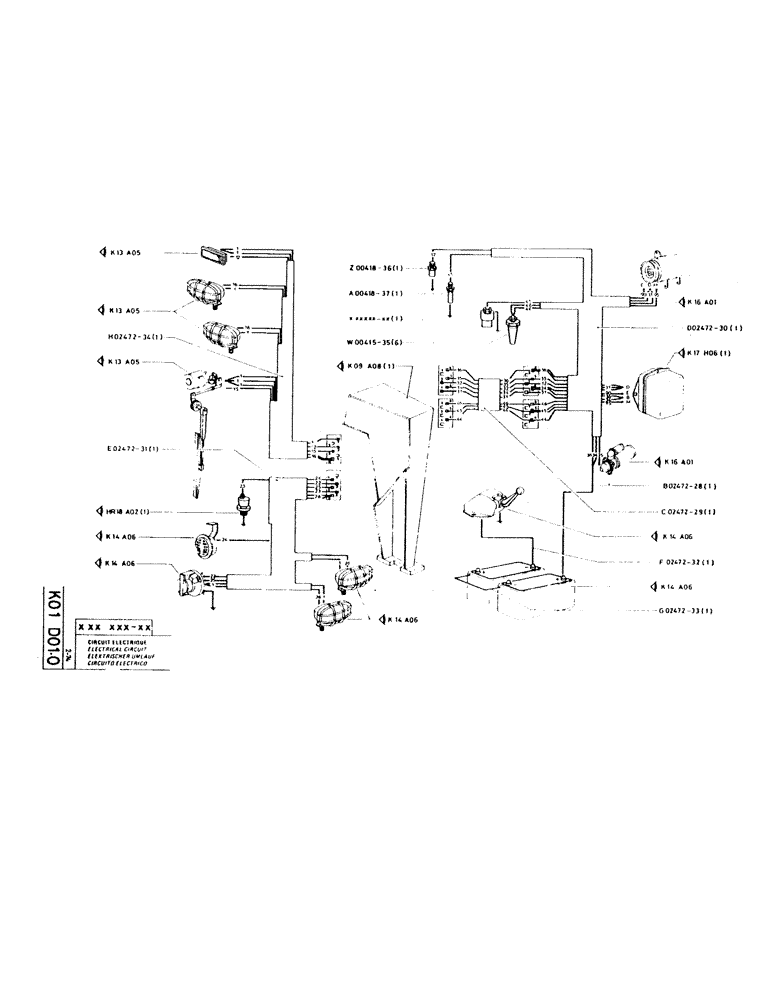
Запчасти Case GCK120 (202) - ELECTRICAL CIRCUIT

Схема запчастей Case GCK120 - (202) - ELECTRICAL CIRCUIT
FIT
1:1
100%

Артикул

Название

Примечание

Количество

K13A05

1шт.

K13A05

1шт.

H02472-34

1шт.

K13A05

1шт.

E02472-31

1шт.

HR18A02

1шт.

K14A06

1шт.

K14A06

1шт.

Z00418-36

1шт.

A00418-37

THERMOSTAT

1шт.

W00415-35

6шт.

K09A08

1шт.

K14A06

1шт.

K16A01

1шт.

D02472-30

1шт.

K17H06

1шт.

K16A01

1шт.

B02472-28

1шт.

C02472-29

1шт.

K14A06

1шт.

F02472-32

1шт.

K14A06

1шт.

G02472-33

1шт.

Выбрано товаров: 23