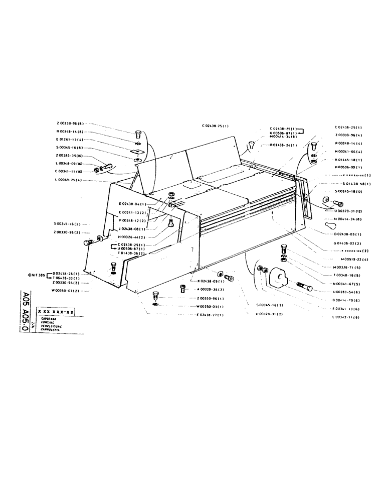
Запчасти Case GCK120 (090) - COWLING

Схема запчастей Case GCK120 - (090) - COWLING
FIT
1:1
100%

Артикул

Название

Примечание

Количество

Z00330-96

SCREW/BOLT, M10 x 25

8шт.

R00348-14

WASHER

8шт.

E01261-13

4шт.

S00345-16

8шт.

Z00283-35

SCREW/BOLT, M6 x 16

16шт.

L00348-09

WASHER

16шт.

C00341-11

NUT

16шт.

L00369-25

4шт.

S00345-16

2шт.

D02438-26

1шт.

NIT385

1шт.

T06438-33

1шт.

Z00330-96

SCREW/BOLT, M10 x 25

2шт.

W00350-03

WASHER

2шт.

E02438-04

1шт.

E00341-13

NUT

2шт.

P00348-12

WASHER

2шт.

J02438-08

1шт.

H00326-44

SCREW/BOLT, M8 x 16

2шт.

C02438-25

1шт.

U00506-87

1шт.

T01438-36

2шт.

K02438-09

1шт.

A00329-36

SCREW/BOLT, M10 x 45

2шт.

Z00330-96

SCREW/BOLT, M10 x 25

1шт.

W00350-03

WASHER

1шт.

E02438-27

1шт.

C02438-25

1шт.

C02438-25

1шт.

U00506-87

1шт.

M00414-34

STOP

8шт.

B02438-24

1шт.

S00345-16

2шт.

U00329-31

SCREW/BOLT, M10 x 20

2шт.

C02438-25

1шт.

Z00330-96

SCREW/BOLT, M10 x 25

4шт.

R00348-14

WASHER

4шт.

M00341-66

NUT

4шт.

Выбрано товаров: 38