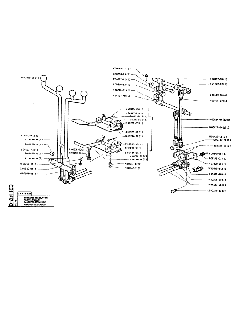
Запчасти Case RC200L (035) - PROPEL CONTROL

Схема запчастей Case RC200L - (035) - PROPEL CONTROL
FIT
1:1
100%

Артикул

Название

Примечание

Количество

P29906

BALL KNOB

4шт.

P442742

1шт.

P28776

SELF LUB RING

20 x 26

2шт.

P442743

1шт.

P28776

SELF LUB RING

20 x 26

2шт.

P36015

SPLIT PIN/SAFETY PIN

SPLIT PIN/SAFET

1шт.

P35005

WASHER

1шт.

P730905

1шт.

P32670

SCREW

/BOLT, M12 x 30

2шт.

P35004

WASHER

4шт.

P35521

SPLIT PIN

3 x 30

2шт.

P35004

WASHER

2шт.

P446282

PITMAN

2шт.

P27853

CLEVIS PIN

PIN, CLEVIS

2шт.

P827601

2шт.

P442740

LEVER

4шт.

P35545

DEUTZ PART

SPLIT PIN, 6 x 45

1шт.

P442783

1шт.

P28776

SELF LUB RING

20 x 26

2шт.

P728103

1шт.

P38017

COIL SPRING

1шт.

P27491

1шт.

P35548

SPLIT PIN/SAFETY PIN

SPLIT PIN, 6 x 70

1шт.

P1328151

1шт.

P642751

1шт.

P28776

SELF LUB RING

20 x 26

2шт.

337475

NUT,M12, Cl 10

2шт.

P34213

NUT

2шт.

P35756

SPLIT PIN/SAFET, 8 x 40

1шт.

P129292

1шт.

P46238

CLEVIS

4шт.

337475

NUT,M12, Cl 10

4шт.

P2404

STEM

1шт.

P2404

STEM

1шт.

P442745

2шт.

P28776

SELF LUB RING

20 x 26

4шт.

P34596

LOCK NUT

2шт.

P828507

WASHER

13 x 7 x 25

2шт.

P730906

1шт.

P51954

LARGE PIN

PIN

8шт.

P46238

CLEVIS

4шт.

337475

NUT,M12, Cl 10

4шт.

P442746

2шт.

P33887

SCREW

/BOLT, M12 x 45

2шт.

Выбрано товаров: 44