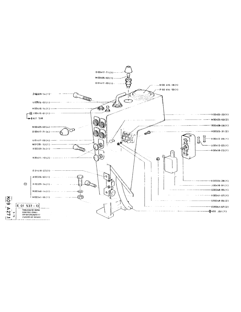
Запчасти Case RC200L (100) - CONTROL PANEL

Схема запчастей Case RC200L - (100) - CONTROL PANEL
FIT
1:1
100%

Артикул

Название

Примечание

Количество

P41602

SWITCH

1шт.

P41614

1шт.

P41661

1шт.

P40560

LAMP

BULB

4шт.

P41771

LENS

4шт.

P141709

ELEC SUPPORT PLATE

4шт.

P128153

1шт.

14420331

HEX SOC SCREW,M10 x 1.5 x 35mm, Cl 10.9, Full Thd

1шт.

P41110

2шт.

P141822

RESISTOR

RESISTANCE

1шт.

11106231

BOLT,Hex, M10 x 1.5 x 25mm, Cl 10.9

BOLT, Hex, M10 x 25, 10.9, Full Thd

1шт.

14420331

HEX SOC SCREW,M10 x 1.5 x 35mm, Cl 10.9, Full Thd

1шт.

P34814

WASHER

1шт.

100016

NUT,M10 x 1.5, Cl 8

1шт.

P41771

LENS

1шт.

P40560

LAMP

BULB

1шт.

P141709

ELEC SUPPORT PLATE

1шт.

P41618

HOURMETER

1шт.

P41459

GASKET

1шт.

P240323

1шт.

P40560

LAMP

BULB

2шт.

P40826

SLIDER

1шт.

P32531

SCREW

/BOLT, M4 x 20

2шт.

P41306

1шт.

P41303

FUSE

1шт.

P41823

CASE

1шт.

P32428

SCREW

1шт.

P41891

CELL

1шт.

P34805

WASHER

1шт.

P34107

NUT

1шт.

P34805

WASHER

2шт.

P34107

NUT

2шт.

P1J51

1шт.

Выбрано товаров: 33