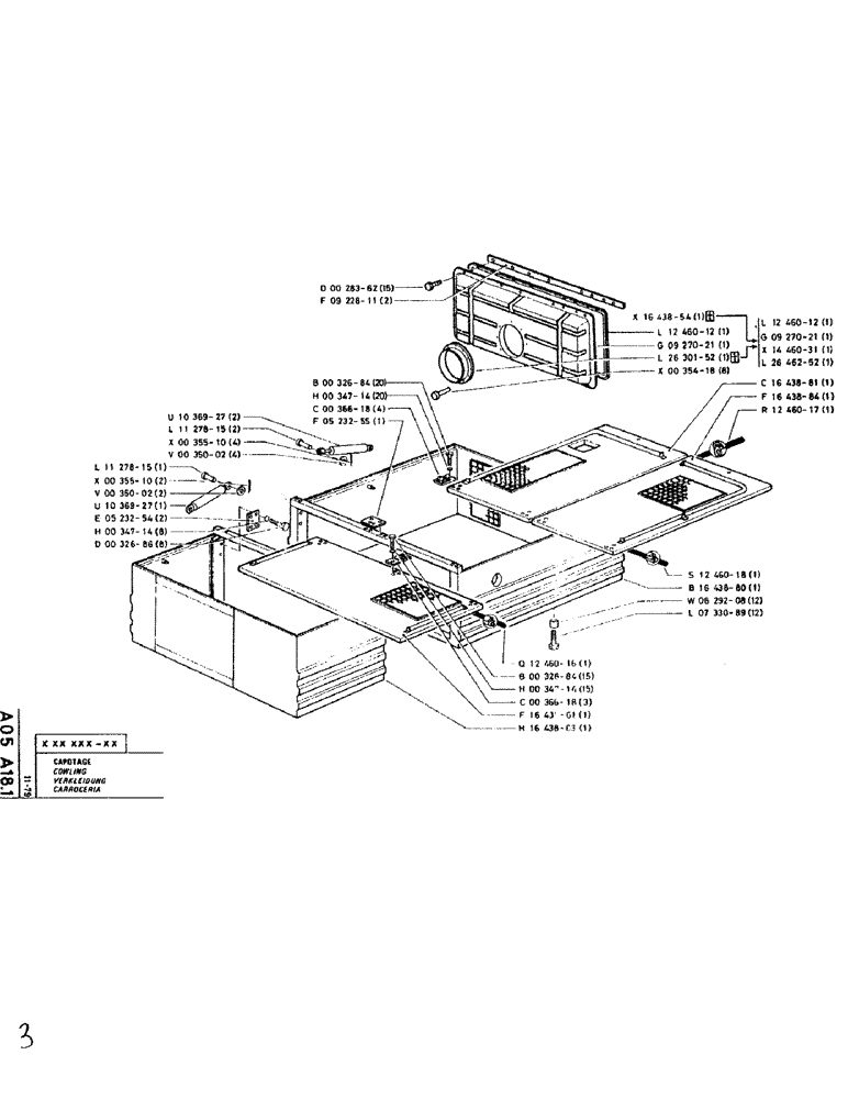
Запчасти Case SC150L (001-3) - COWLING

Схема запчастей Case SC150L - (001-3) - COWLING
FIT
1:1
100%

Артикул

Название

Примечание

Количество

P1127815

PIN

1шт.

P35510

SPLIT PIN

2 x 20

2шт.

P35002

WASHER

2шт.

P1036927

GAS STRUT

RUNNER

1шт.

P523254

LARGE PLATE

2шт.

P34714

WASHER, LOCK

WASHER

8шт.

P32686

SCREW

/BOLT, M14 x 30

8шт.

P1036927

GAS STRUT

RUNNER

2шт.

P1127815

PIN

2шт.

P35510

SPLIT PIN

2 x 20

4шт.

P35002

WASHER

4шт.

P28362

SCREW

15шт.

P922811

PLATE

2шт.

P32684

SCREW

20шт.

P34714

WASHER, LOCK

WASHER

20шт.

P36618

4шт.

P523255

1шт.

P1246016

1шт.

P32684

SCREW

15шт.

P34714

WASHER, LOCK

WASHER

15шт.

P36618

3шт.

P1643863

COWLING ASSY

1шт.

P1643854

1шт.

P1246012

SEAL

1шт.

P927021

1шт.

P2630152

1шт.

P35418

RIVET

D4.8 x 17

8шт.

P1246018

1шт.

P1643880

COWL

1шт.

P629208

BUSHING

12шт.

P733089

SCREW/BOLT, M14 x 90

12шт.

P1246012

SEAL

1шт.

P927021

1шт.

P1446031

SEAL

1шт.

P2646252

ENGINE VENT SLEEVE

1шт.

P1643881

1шт.

P1643884

1шт.

P1246017

1шт.

Выбрано товаров: 38