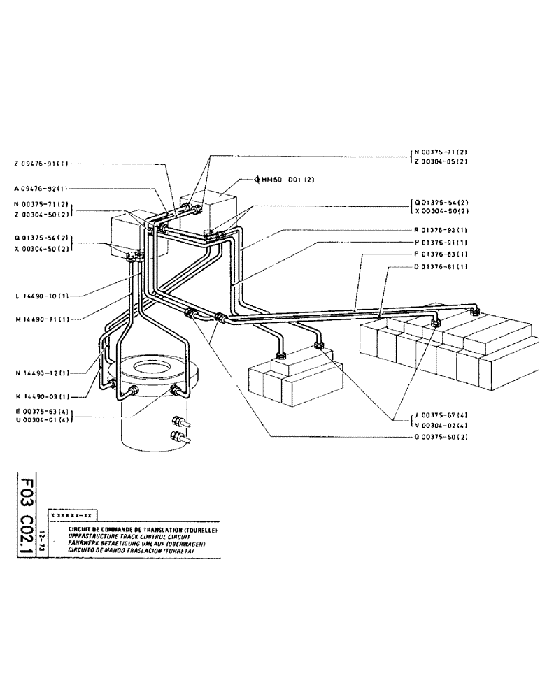
Запчасти Case TC45 (052) - UPPERSTRUCTURE TRACK CONTROL CIRCUIT

Схема запчастей Case TC45 - (052) - UPPERSTRUCTURE TRACK CONTROL CIRCUIT
FIT
1:1
100%

Артикул

Название

Примечание

Количество

P947691

1шт.

P947692

1шт.

P37571

UNION

2шт.

P30450

O-RING,3mm Thk x 36mm ID

2шт.

P137554

UNION

2шт.

P30450

O-RING,3mm Thk x 36mm ID

3 x 36

2шт.

P1449010

1шт.

P1449011

1шт.

P1449012

1шт.

P1449009

1шт.

P37563

UNION

4шт.

P30401

O-RING,2.5mm Thk x 18.5mm ID

4шт.

PM50D01

2шт.

P37571

UNION

2шт.

P30405

O-RING

SEAL, 2.62 x 32.99-80

2шт.

P137554

UNION

2шт.

P30450

O-RING,3mm Thk x 36mm ID

3 x 36

2шт.

P137693

1шт.

P137691

PIPE

1шт.

P137683

1шт.

P137681

1шт.

P37567

UNION

4шт.

P30402

O-RING

4шт.

P37550

UNION

2шт.

Выбрано товаров: 24