Запчасти Case TC45 (075) - ELECTRICAL CIRCUIT

Схема запчастей Case TC45 - (075) - ELECTRICAL CIRCUIT
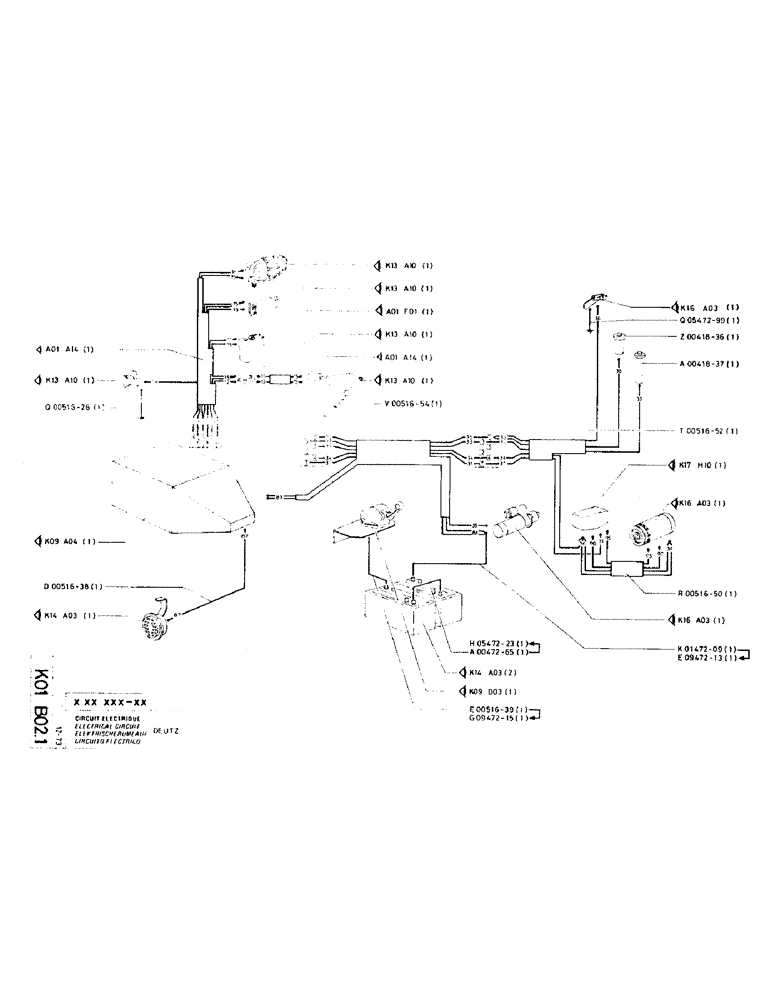
FIT
1:1
100%

Артикул

Название

Примечание

Количество

P1A14

1шт.

P13A10

1шт.

P51626

1шт.

P9A04

1шт.

P51638

1шт.

P14A03

1шт.

P13A10

1шт.

P13A10

1шт.

P1F01

1шт.

P13A10

1шт.

P1A14

1шт.

P13A10

1шт.

P51654

1шт.

P547223

CABLE

1шт.

P47265

CABLE

1шт.

P14A03

2шт.

P9D03

1шт.

P51639

CABLE

1шт.

P947215

CABLE

1шт.

P16A03

1шт.

P547299

1шт.

P41836

1шт.

P41837

DEUTZ PART

THERMOSTAT

1шт.

P51652

1шт.

P17H10

1шт.

P16A03

1шт.

P51650

1шт.

P16A03

1шт.

P147209

1шт.

P947213

1шт.

Выбрано товаров: 30