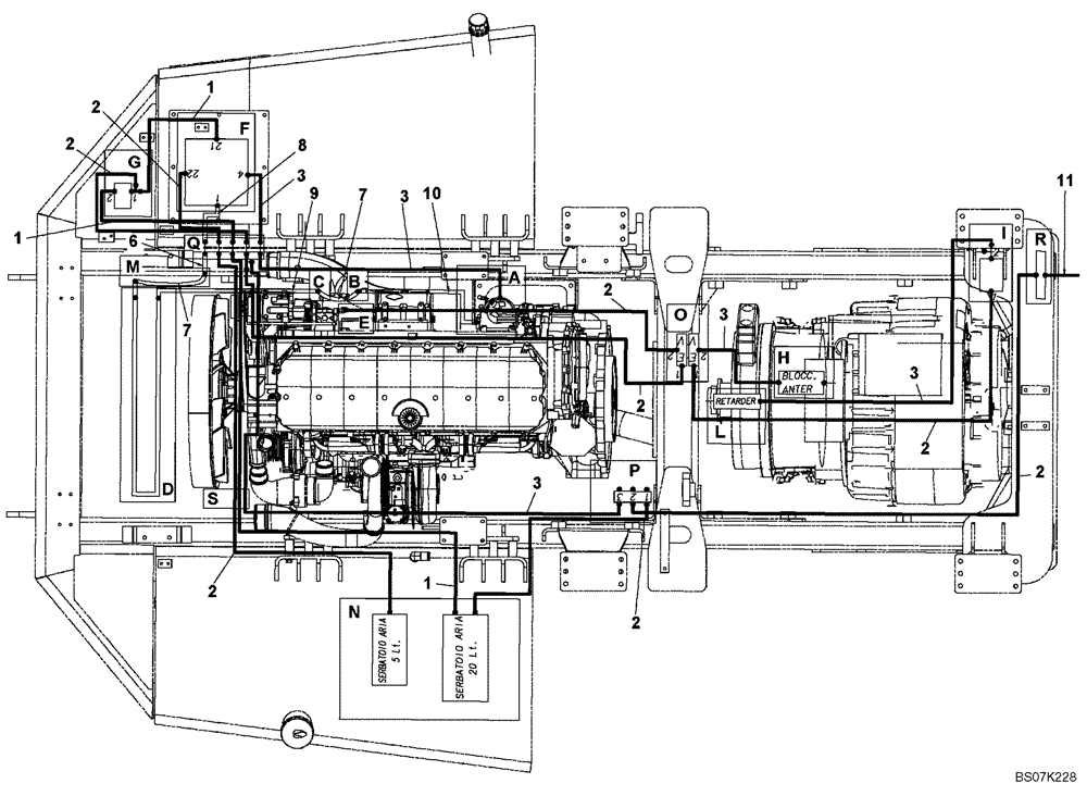
Запчасти Case 330B (49A00000937[001]) - PNEUMATICS, FRONT FRAME - W/O RETARDER (87559447) (09) - Implement / Hydraulics / Frame / Brakes

Схема запчастей Case 330B - (49A00000937[001]) - PNEUMATICS, FRONT FRAME - W/O RETARDER (87559447) (09) - Implement / Hydraulics / Frame / Brakes
2
2
3
6
2
1
11
6
8
1
10
2
9
7
2
3
2
3
2
3
2
3
1
FIT
1:1
100%

Артикул

Название

Примечание

Количество

1

8900095213

PLASTIC-RUBBER TUBE

1шт.

Order Length

1шт.

2

8900095211

HOSE

1шт.

Order Length

1шт.

3

8900095210

PLASTIC-RUBBER TUBE

1шт.

Order Length

1шт.

6

89500418254

TUBE,18 mm DIA x 165 mm L

1шт.

7

8900110455

HOSE

2шт.

8

89500422950

TUBE

Copper; Replaces 89500418255 Tube Copper Used On Some Models

1шт.

9

89500418256

TUBE,18 mm DIA x 880 mm L

1шт.

10

89500418257

TUBE,18 mm DIA x 580 mm L

1шт.

11

89500418270

HOSE ASSY.

1шт.

Выбрано товаров: 12