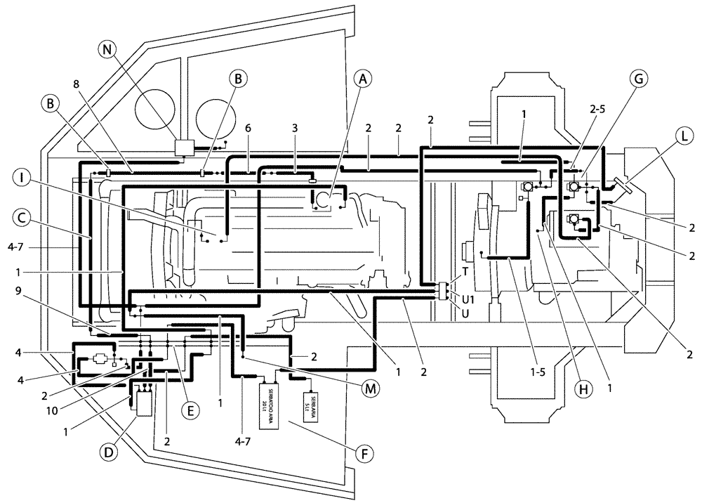
Запчасти Case 340 (49A00010898[001]) - PNEUMATIC SYSTEM - FRONT FRAME (36) - PNEUMATIC SYSTEM

Схема запчастей Case 340 - (49A00010898[001]) - PNEUMATIC SYSTEM - FRONT FRAME (36) - PNEUMATIC SYSTEM
2
4
1
9
2
7
1
2
1
2
1
7
2
5
2
5
2
8
4
3
1
4
2
1
10
2
2
1
2
4
6
FIT
1:1
100%

Артикул

Название

Примечание

Количество

1

8900095210

PLASTIC-RUBBER TUBE

D.4 x 6

1шт.

2

8900095211

HOSE

D.6 x 8

1шт.

3

89500407804

PIPE

1шт.

4

8900095213

PLASTIC-RUBBER TUBE

D.9 x 12

1шт.

5

8900095153

FLEXIBLE SHEATH

D.8.4 x 11.7

1шт.

6

8900110455

HOSE

1шт.

7

8900095201

TUBE

D.12.7 x 15.8

1шт.

8

89500407807

PIPE

1шт.

9

89500407806

PIPE

1шт.

10

89500407805

PIPE

1шт.

Выбрано товаров: 10