Качественные детали и логистика
Оригинальные и аналоговые запчасти с доставкой по России, Казахстану и Беларуси
©2022 PartSell ООО "Система" ИНН 2463123282 ОГРН 1212400004838
Центральный офис: г. Красноярск, Академика Киренского, д.87, пом.4
Телефон: 8 (800) 777-65-74 Email: zakaz@partsell.ru
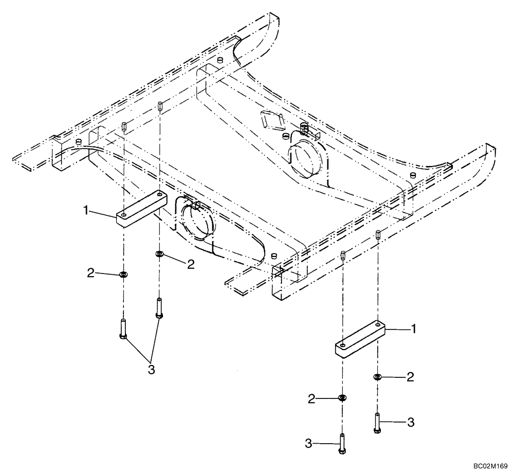
(06-33) - AXLE, REAR - STOP
№
Артикул
Название
Примечание
Количество
1
8602185
PLATE
2шт.
2
896-11012
WASHER,13.5mm ID x 24mm OD x 3mm Thk
4шт.
3
827-12055
BOLT,Hex, M12 x 1.75 x 55mm, Cl 10.9
Выбрано товаров: 0