Качественные детали и логистика
Оригинальные и аналоговые запчасти с доставкой по России, Казахстану и Беларуси
©2022 PartSell ООО "Система" ИНН 2463123282 ОГРН 1212400004838
Центральный офис: г. Красноярск, Академика Киренского, д.87, пом.4
Телефон: 8 (800) 777-65-74 Email: zakaz@partsell.ru
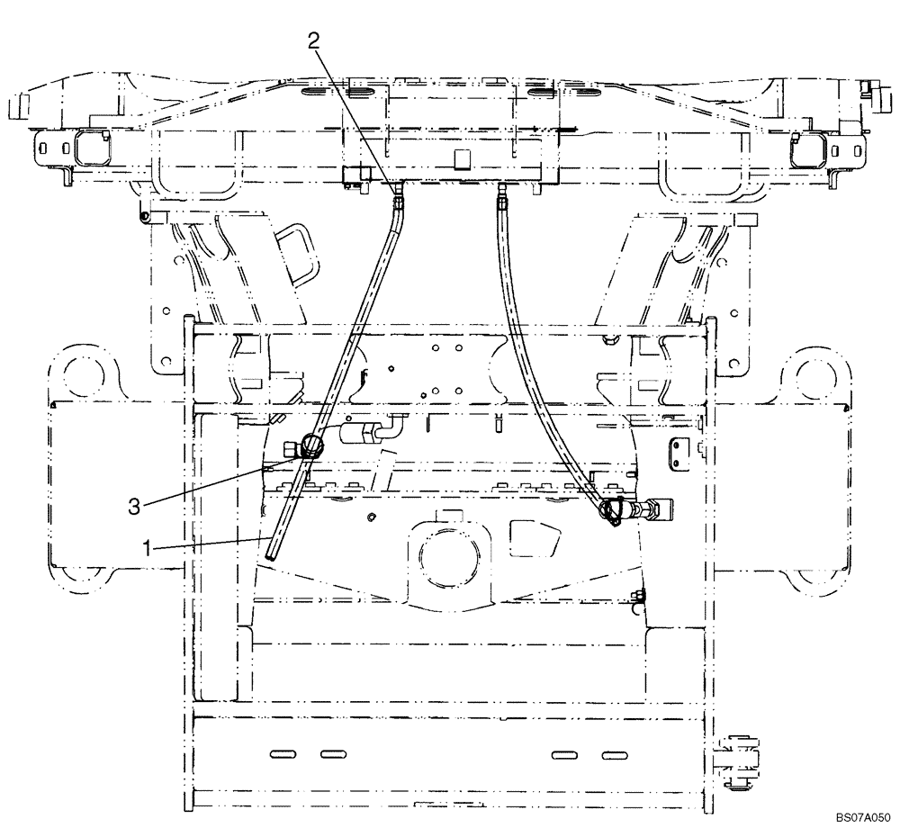
(09-78) - AIR CONDITIONING HOSES - DRAIN LINES
№
Артикул
Название
Примечание
Количество
1
87587637
PLASTIC-RUBBER TUBE
2шт.
2
87587636
FITTING
3
L11541
CABLE TIE,203.2mm L, Nylon
CABLE STRAP
Выбрано товаров: 0