Запчасти Case 921E (08-12) - VALVE, FAN SPEED AND REVERSER - MOUNTING (08) - HYDRAULICS

Схема запчастей Case 921E - (08-12) - VALVE, FAN SPEED AND REVERSER - MOUNTING (08) - HYDRAULICS
3
5
8a
1
12b
4
8
7
11b
12
12a
11
8b
11a
9
2
6
10
FIT
1:1
100%

Артикул

Название

Примечание

Количество

REF

INSTRUCTION

- FAN SPEED AND REVERSER, IF USED

1шт.

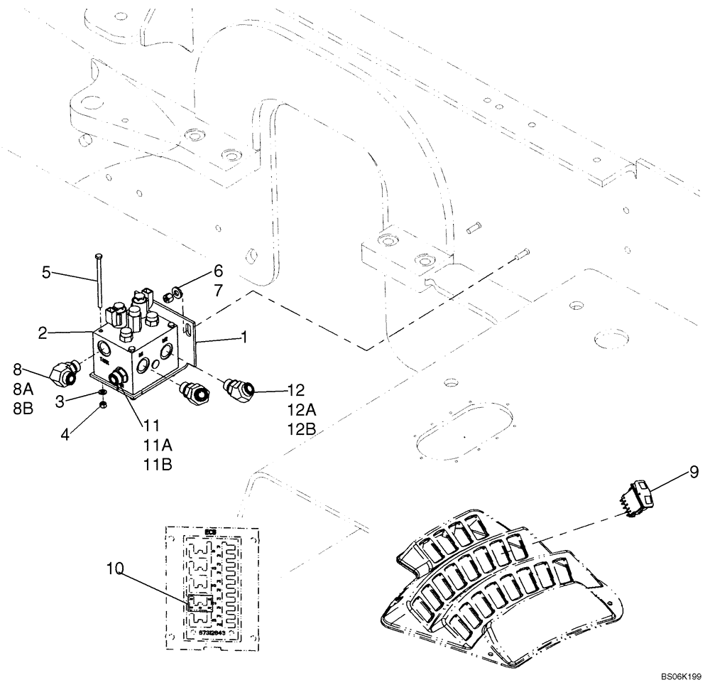
1

87359881

BRACKET

Fan Speed and Reverser Valve Mounting

1шт.

2

8500565

HYDRAULIC VALVE

Fan Speed and Reverser; See Figure 08-12A

1шт.

3

896-11008

WASHER,9mm ID x 17mm OD x 2mm Thk

4шт.

4

832-10408

NUT,M8 x 1.25, Cl 8.8

4шт.

5

814-8140

BOLT,Hex, M8 x 1.25 x 140mm, Cl 8.8

4шт.

6

896-15012

WASHER,13.5mm ID x 28mm OD x 4mm Thk

2шт.

7

832-10412

NUT,M12 x 1.75, Cl 8

2шт.

8

700-307

ELBOW,90 Degree Elbow, 1-3/16" - 12 Male ORFS x M27 x 2 Male ORB

Incl. 8A, 8B

2шт.

8a

637-64236

O-RING,2.9mm Thk x 23.6mm ID, Cl 6, 90 Duro

Boss

1шт.

8b

238-6018

O-RING,0.07" Thk x 0.739" ID, -18, Cl 6, 90 Duro

Face End

1шт.

9

87350049

SWITCH

Fan Reverser

1шт.

10

87312626

RELAY,24V

5-Pin 280 Series

1шт.

11

700-104

HYD CONNECTOR,1-3/16" - 12 Male ORFS x M27 x 2 Male ORB

Incl. 11A, 11B

1шт.

11a

238-6018

O-RING,0.07" Thk x 0.739" ID, -18, Cl 6, 90 Duro

Face Seal

1шт.

11b

637-64236

O-RING,2.9mm Thk x 23.6mm ID, Cl 6, 90 Duro

Boss

1шт.

12

700-387

ELBOW,45 Degree Elbow, 1-3/16" - 12 Male ORFS x M27 x 2 Male ORB

Incl. 12A, 12B

1шт.

12a

238-6018

O-RING,0.07" Thk x 0.739" ID, -18, Cl 6, 90 Duro

Face Seal

1шт.

12b

637-64236

O-RING,2.9mm Thk x 23.6mm ID, Cl 6, 90 Duro

Boss

1шт.

Выбрано товаров: 19