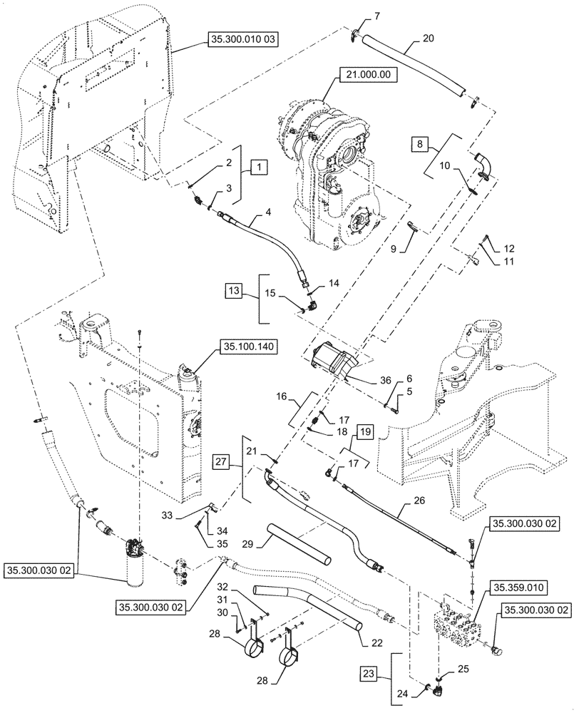
Запчасти Case 621G (35.300.030[01]) - HYDRAULIC RESERVOIR SUPPLY LINE (35) - HYDRAULIC SYSTEMS

Схема запчастей Case 621G - (35.300.030[01]) - HYDRAULIC RESERVOIR SUPPLY LINE (35) - HYDRAULIC SYSTEMS
35.359.010
26
1
28
20
32
22
16
6
34
29
4
14
17
13
28
35
31
3
2
27
8
9
36
25
24
33
15
17
11
21
23
19
18
5
7
30
10
12
35.300.030 02
35.300.030 02
35.300.030 02
35.300.030 02
35.300.010 03
35.100.140
21.000.00
FIT
1:1
100%

Артикул

Название

Примечание

Количество

1

700-316

ELBOW,45 Degree Elbow, 1" - 14 Male ORFS x M22 x 1.5 Male ORB

Incl 2 - 3

1шт.

2

238-6016

O-RING,0.07" Thk x 0.614" ID, -16, Cl 6, 90 Duro

1шт.

3

637-63193

O-RING,2.2mm Thk x 19.3mm ID, Cl 6, 90 Duro

1шт.

4

87629991

HOSE

Case Drain, 838mm Lg

1шт.

5

627-16045

BOLT,Hex, M16 x 2 x 45mm, Cl 10.9, Full Thd

2шт.

6

896-11016

WASHER,17.5mm ID x 30mm OD x 4mm Thk

2шт.

7

254026A1

HOSE CLAMP,44.45mm - 66.67mm

Constant Torque

2шт.

8

388509A1

TUBE,50.8 mm OD, 130, 100 mm Length

Pump Suction, Incl 10

1шт.

9

L14386

CLAMP

Split Flange, 2-1/2"

2шт.

10

238-5232

O-RING,0.139" Thk x 2.734" ID, -232, Cl 5, 75 Duro

1шт.

11

895-11012

WASHER,13.5mm ID x 24mm OD x 2.5mm Thk

4шт.

12

627-12040

BOLT,Hex, M12 x 1.75 x 40mm, Cl 10.9, Full Thd

4шт.

13

700-307

ELBOW,90 Degree Elbow, 1-3/16" - 12 Male ORFS x M27 x 2 Male ORB

Incl 14, 15

1шт.

14

637-64236

O-RING,2.9mm Thk x 23.6mm ID, Cl 6, 90 Duro

1шт.

15

238-6018

O-RING,0.07" Thk x 0.739" ID, -18, Cl 6, 90 Duro

1шт.

16

700-100

HYD CONNECTOR,9/16" - 18 Male ORFS x M12 x 1.5 Male ORB

Incl 17, 18

1шт.

17

238-6011

O-RING,0.07" Thk x 0.301" ID, -11, Cl 6, 90 Duro

2шт.

18

637-63093

O-RING,2.2mm Thk x 9.3mm ID, Cl 6, 90 Duro

1шт.

19

701-329

ELBOW,90 Degree Elbow, 9/16" - 18 Male ORFS x 9/16" - 18 Female ORFS

Incl 17

1шт.

20

388556A1

HOSE ASSY.

Pump Suction, 860mm Lg

1шт.

21

238-6222

O-RING,0.139" Thk x 1.484" ID, -222, Cl 6, 90 Duro

1шт.

22

401526A1

HOSE PROTECTION,60mm ID x 1200mm L

Sleeve

1шт.

23

700-308

ELBOW,90 Degree Elbow, 1-7/16" - 12 Male ORFS x M33 x 2 Male ORB

Incl 24, 25

1шт.

24

238-6021

O-RING,15/16 X 1 - 1/16, Cl 6

1шт.

25

637-64296

O-RING,2.9mm Thk x 29.6mm ID, Cl 6, 90 Duro

1шт.

26

388558A1

HOSE ASSY.

Pump Load Sensing, 1327mm Lg, Incl 21

1шт.

27

388555A2

HOSE ASSY.

Pump Pressure, 1337mm Lg

1шт.

28

401527A2

STRAP

Articulation Hoses

2шт.

29

401525A1

HOSE PROTECTION,60.00 mm ID x 600.00 mm

Sleeve

1шт.

30

627-10030

BOLT,Hex, M10 x 1.5 x 30mm, Cl 10.9, Full Thd

1шт.

31

895-15010

WASHER,11mm ID x 24mm OD x 2mm Thk

2шт.

32

832-10410

NUT,M10 x 1.5, Cl 8

1шт.

33

87680118

CLAMP

Split Flange, 32 mm

2шт.

34

895-11014

WASHER,M14 x 28 x 2.5

4шт.

35

627-14045

BOLT,Hex, M14 x 2 x 45mm, Cl 10.9, Full Thd

4шт.

36

47773405

PUMP

Implement

1шт.

47773405R

REMAN-HYD PUMP

Reman Pump Implement

1шт.

47773405C

CORE-HYDRAULIC PUMP

Return Number

1шт.

Выбрано товаров: 38