Запчасти Case 621G (35.359.020[02]) - VAR - 734051, 734052 - CONTROL VALVE ASSY - 2 SPOOL, XT / TC (35) - HYDRAULIC SYSTEMS

Схема запчастей Case 621G - (35.359.020[02]) - VAR - 734051, 734052 - CONTROL VALVE ASSY - 2 SPOOL, XT / TC (35) - HYDRAULIC SYSTEMS
35.359.020 01
16
11
26
22
6
10
7
14
17
12
26
8
5
25
26
2
18
24
7
23
2
9
12
13
3
4
15
14
13
8
16
1
15
15
20
26
19
21
13
FIT
1:1
100%

Артикул

Название

Примечание

Количество

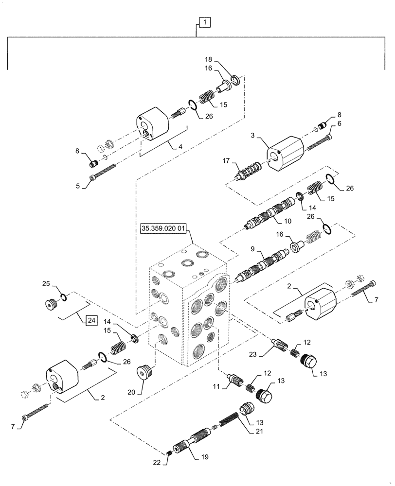
1

87680515

HYDRAULIC VALVE

Two Spool, Incl 2-26

1шт.

2

8604576

COVER

M6 Valve, Bucket (A1, B1)

2шт.

3

87311972

COVER

M6 Valve, Lift (B2)

1шт.

4

8605577

COVER

M6 Valve, Lift (A2)

1шт.

5

864-5060

HEX SOC SCREW,M5 x 60mm, Cl 8.8

2шт.

6

87311974

HEX SOC SCREW,M5 x 85mm, Cl 10.9

2шт.

7

87657975

HEX SOC SCREW,M5 x 55mm, Cl 8.8

4шт.

8

8604578

CHECK VALVE

Throttle

2шт.

9

87692471

SPOOL

Spool, Incl in 1

1шт.

10

87692470

SPOOL

Spool, Incl in 1

1шт.

11

8604579

VALVE

Piston, Incl in 1

1шт.

12

8604580

SPRING

Compression Spring, Incl in 1

2шт.

13

8604581

SCREW,Lock, M6

3шт.

14

8604582

RETAINER

Spring Retainer, Incl in 1

2шт.

15

8604583

SPRING

Compression Spring, Incl in 1

4шт.

16

87311984

RETAINER

Retainer, Incl in 1

2шт.

17

87311985

SPRING

Spring, Incl in 1

1шт.

18

87311986

RING

Ring, Incl in 1

1шт.

19

8604584

PISTON

Piston, Incl in 1

1шт.

20

87311988

PLUG

M22 x 1.5

1шт.

21

47728940

SPRING

Compression Spring, Incl in 1

1шт.

22

87311990

JET

Jet, Incl in 1

2шт.

23

87311991

SPOOL

Spool, Incl in 1

1шт.

24

221578A1

PLUG,M18 x 1.5 ORB

Incl 25

1шт.

25

86598101

O-RING,2.2mm Thk x 15.3mm ID, Cl 6, 90 Duro

1шт.

26

8604575

SEAL KIT

For Main Housing, Incl in 1

1шт.

Выбрано товаров: 26