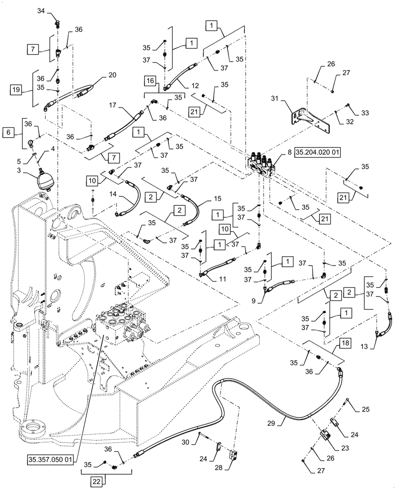
Запчасти Case 821G (35.480.020[01]) - VAR - 734053, 734054 - CONTROL VALVE LINE - 3 SPOOL, EH (35) - HYDRAULIC SYSTEMS

Схема запчастей Case 821G - (35.480.020[01]) - VAR - 734053, 734054 - CONTROL VALVE LINE - 3 SPOOL, EH (35) - HYDRAULIC SYSTEMS
35.357.050 01
20
9
1
36
19
12
35
37
23
35
35
37
36
10
37
35
1
16
24
11
7
31
37
36
37
37
27
37
2
36
28
1
34
2
13
35
22
14
35
37
10
3
35
35
35
35
25
35
6
27
1
37
21
1
15
18
35
26
7
2
35
21
21
17
1
35
29
2
33
36
37
4
32
35
37
37
1
36
35
5
24
35
30
36
8
35
26
37
35.204.020 01
FIT
1:1
100%

Артикул

Название

Примечание

Количество

1

700-153

HYD CONNECTOR,9/16" - 18 Male ORFS x M14 x 1.5 Male ORB

Incl 35, 37

8шт.

2

700-378

ELBOW,90 Degree Elbow, 9/16" - 18 Male ORFS x M14 x 1.5 Male ORB

Incl 35, 37

4шт.

3

8501047

ACCUMULATOR

Pilot Supply

1шт.

4

238-6012

O-RING,0.07" Thk x 0.364" ID, -12, Cl 6, 90 Duro

1шт.

5

701-909

NUT,11/16" - 16

1шт.

6

701-319

ELBOW,90° Elbow, 11/16" - 16 Male ORFS x 11/16" - 16 Female ORFS

Incl 36

1шт.

7

701-422

TEE,11/16" - 16 Male ORFS x 11/16" - 16 Male ORFS x 11/16" - 16 Female ORFS

Incl 36

2шт.

8

47646722

VALVE

Hyd, EH Control, 3-Function

1шт.

9

47646852

HOSE

3rd Function LH

1шт.

10

701-329

ELBOW,90 Degree Elbow, 9/16" - 18 Male ORFS x 9/16" - 18 Female ORFS

Incl 37

2шт.

11

47646863

HOSE

Pilot Lower (Red)

1шт.

12

47646862

HOSE

Pilot Dump (Green)

1шт.

13

47646853

HOSE

3rd Function RH

1шт.

14

47646864

HOSE

Pilot Rollback (Orange)

1шт.

15

47646869

HOSE

Pilot Raise (Yellow)

1шт.

16

700-304

ELBOW,90 Degree Elbow, 11/16" - 16 Male ORFS x M14 x 1.5 Male ORB

Incl 35, 36

1шт.

17

47646860

HOSE

Pilot Pressure

1шт.

18

700-101

HYD CONNECTOR,11/16" - 16 Male ORFS x M14 x 1.5 Male ORB

Incl 35, 36

1шт.

19

391859A1

VALVE, CHECK

Incl 35, 36

1шт.

20

47646859

HOSE

Pilot Pressure

1шт.

21

221576A1

PLUG,Hex Soc, M14 x 1.5, ORB

Incl 35

9шт.

22

700-315

ELBOW,45 Degree Elbow, 11/16" - 16 Male ORFS x M14 x 1.5 Male ORB

Incl 35, 36

1шт.

23

379374A1

BLOCK

1шт.

24

367658A1

PLATE

2шт.

25

827-10080

BOLT,Hex, M10 x 1.5 x 80mm, Cl 10.9

2шт.

26

895-11010

WASHER,11mm ID x 20mm OD x 2mm Thk

6шт.

27

832-10410

NUT,M10 x 1.5, Cl 8

6шт.

28

8501052

SPECIAL CLAMP

1шт.

29

47903942

HOSE

Pilot Tank

1шт.

30

827-10100

BOLT,Hex, M10 x 1.5 x 100mm, Cl 10.9

2шт.

31

47903892

BRACKET

EH Valve Mount - Z-BAR / XR / LR

1шт.

32

892-11010

LOCK WASHER,M10

3шт.

33

627-10025

BOLT,Hex, M10 x 1.5 x 25mm, Cl 10.9, Full Thd

3шт.

34

190117A1

COUPLING

Diagnostic

1шт.

35

86639042

O-RING,2.2mm Thk x 11.3mm ID, Cl 6

27шт.

36

9993141

O-RING,0.07" Thk x 0.364" ID, -12, Cl 6, 90 Duro

7шт.

37

9825770

O-RING,0.07" Thk x 0.301" ID, -11, Cl 6, 90 Duro

14шт.

Выбрано товаров: 37